Myydään varastotilat - Masku
Savikuja 1, 21250 Masku #10861515
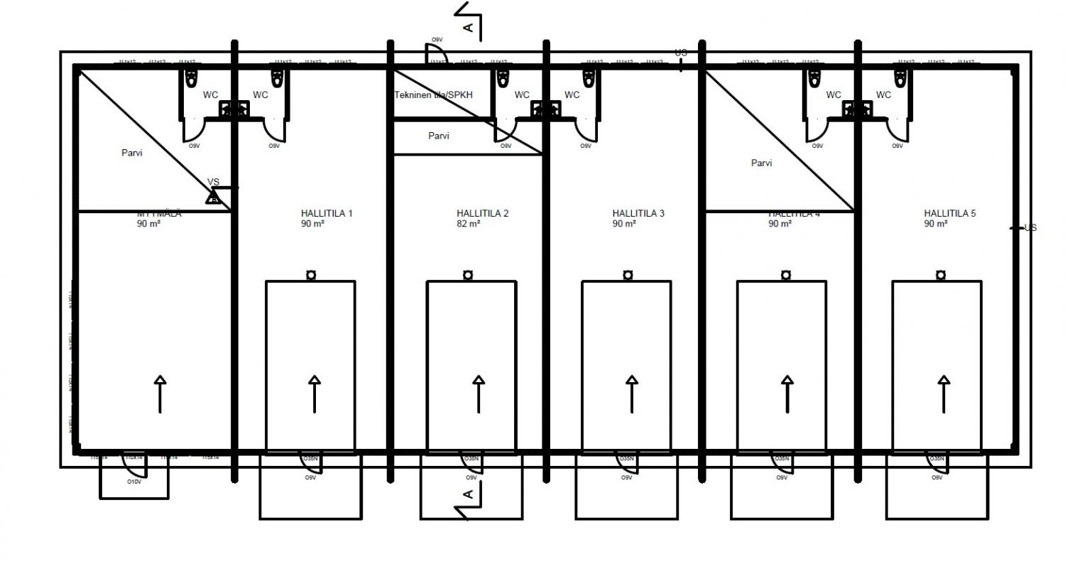
Nyt myynnissä vastavalmistunut (Halli 5) halliosake hyvien liikenneyhteyksien varrelta Raumantien vierestä!
Pinta-alaltaan 90 m2 toimitila on vastavalmistunut ja tarjoaa loistavat puitteet niin tuotantoon, harrastetilaksi tai varastointiin.
Tilassa on varusteina mm. lattiakaivo öljynerotuksella, wc, sähkökäyttöinen suuri Assa Abloy nosto-ovi, joka mahdollistaa sisäänajon suurellakin kalustolla. Lisäksi tilassa on valo ja voimavirta, sekä led-valaistus.
Vapaa korkeuden johdosta, kohteeseen on myös mahdollista rakentaa parvi, mihin voit sijoittaa halutessasi mm. sosiaali tai toimistotiloja.
Edullinen hoitovastike mahdollistaa kustannustehokkaan ylläpidon, lisäksi toimitilassa on oma vesi ja sähkömittari, joten maksat vain omasta käytöstäsi.
Tyylikäs toimitila on myös mahdollista vuokrata 890€/kk + alv + käyttökulut
Tiesitkö, että tilan hakijalle palvelumme on maksuton?
Ota yhteyttä ja kysy lisää!
Lisätiedot ja yhteydenotto:
www.blanctoimitilat.fi
Harri Laisto Toimitila-asiantuntija, LKV, Kaupanvahvistaja
+358 40 536 5590
harri.laisto@blanckiinteisto.com

Blanc Toimitilat
Harri Laisto
Toimitila-asiantuntija, CEO, Kaupanvahvistaja, LKV
Näytä puhelinnumero
+358405365590