Vuokrataan toimistotilat - Tampere
Kuninkaankatu 30 A, Keskusta, 33100 Tampere #10861460
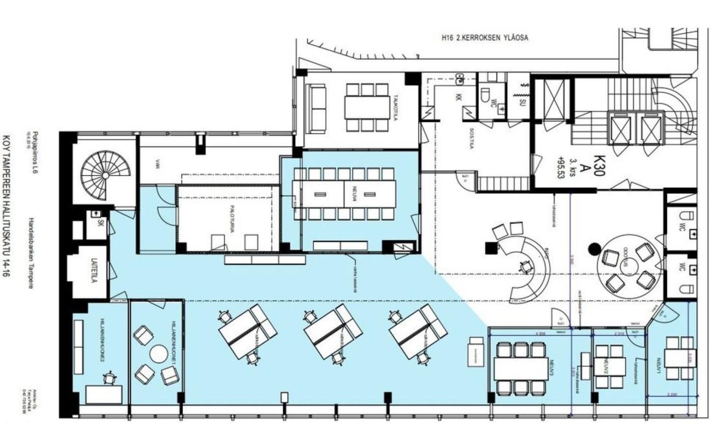
Toimisto keskustassa 318m2
Osoite
Kuninkaankatu 30 A, 33100 Tampere
Tilatyyppi
Toimistotilaa
318 m2
Kiinteistö
Vapaan edustava 318,5m2 toimisto keskustan ytimessä.
Vapautuu
Kysy
Kerros
3.
Ota yhteyttä
Logistila Oy
Kalevan puistotie 22 LT 4, 33500 Tampere
Jukka Nukari
Näytä puhelinnumero
0440759789
Pyydä lisätietoa
