Vuokrataan toimistotilat, muut tilat - Kuopio

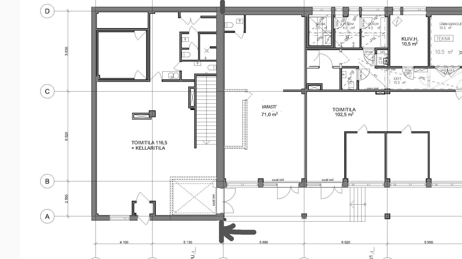
Toimisto + kellaritilaa, Kotkankallionkatu 11, 70600 Kuopio #10861453

Toimistotilaksi tai vast. 116 m2 omalla sisäänkäynnillä 1. krs. Toimistotilan alapuolella DNA:n käytössä ollutta hyvin ilmastoitua entistä kellari/palvelintilaa 238 m2. Kellaritilaan portaat suoraan toimistotiloista. Toimistotilassa 2 kpl wc, suihkutila, keittösoppi, 20 m2 varastotila.

Osoite
Kotkankallionkatu 11, 70600 Kuopio
Tilatyyppi
Toimistotilaa
116 m2
Muuta tilaa
238 m2
Yhteensä
354 m2
Pohjapiirros
Kiinteistö
Kiinteistössä asuntoja + toimistotiloja ja varastotiloja.
Kiinteistön palvelut
Kiinteistöpalvelut
Sijainti
Kuopion Niiralassa, Kotkankallion rinteessä, lähellä KYSiä ja Yliopistoa. Hyvät liikenneyhteydet.
Ympäristö
Kotakankallion metsämaasto ja huuhanmäen lenkkipolut vieressä
Pysäköinti
Parkkipaikkoja yht 3, tarvittaessa lisää.
Kulkuyhteydet
Hyvät liikenneyhteydet
Muuta
Rauhallinen sijainti, ei parkkiongelmia.
Vapautuu
Vapaa
Rakennusvuosi
1970

Katutasossa

Pyydä lisätietoa

Kohteesta Kotkankallionkatu 11, Kuopio

 

B2B palvelut

HALLIT

LASTAUSRATKAISUT

Mainos
Lastauksien ratkaisut tehokkaammin ja turvallisemmin