Vuokrataan toimistotilat - Iisalmi
Kauppakatu 21, Keskusta, 74100 Iisalmi #10861393
Toimistotilaa Iisalmen ytimestä Kauppakadulta
Iisalmen keskustan arvostetulla liikepaikalla, Kauppakatu 21:n osoitteessa, on avautunut vuokrattavaksi toimistotilaa. Sijainti aivan kaupungin ydinkeskustassa tarjoaa yrityksellesi erinomaisen näkyvyyden ja saavutettavuuden keskeisten palveluiden äärellä. Tämä toimitila on vaivaton valinta yritykselle, joka arvostaa keskeistä sijaintia Pohjois-Savon sydämessä.
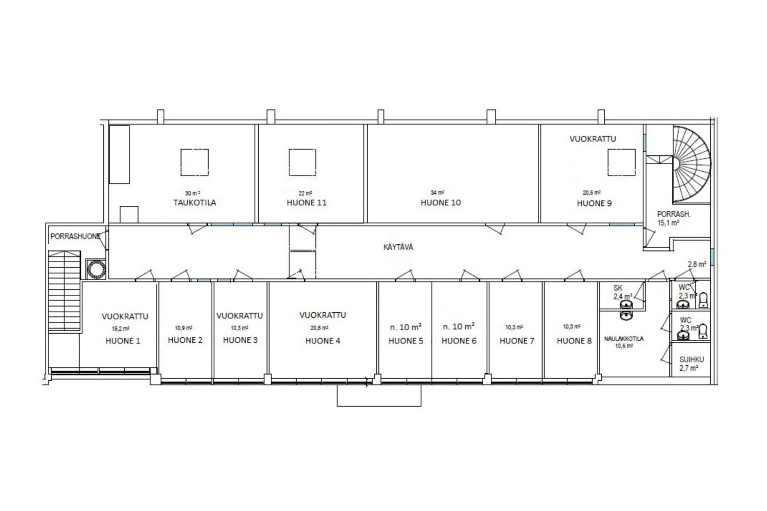
Toimitila soveltuu erinomaisesti monipuoliseen toimistokäyttöön. Tilat on suunniteltu vastaamaan nykypäivän vaatimuksia tehokkaasta työympäristöstä, ja ne tarjoavat joustavat puitteet niin pienen yrityksen toiminnalle kuin isommallekin asiantuntijaorganisaatiolle. Avara ja selkeä pohjaratkaisu mahdollistaa tilojen muokattavuuden juuri teidän tarpeitanne vastaavaksi.
Kohde sijaitsee tunnetulla kauppapaikalla, jossa jalankulkuvirrat ja yritystoiminnan keskittymä luovat optimaalisen toimintaympäristön. Iisalmen keskustan palvelut, kuten ravintolat ja kaupalliset keskukset, ovat aivan kynnykselläsi, mikä tekee arjen asioinnista ja asiakastapaamisista sujuvaa ja miellyttävää.
Tervetuloa tutustumaan tähän liiketoimintanne tarpeisiin sopivaan tilaan. Ota yhteyttä ja sovitaan esittely, niin katsotaan yhdessä, kuinka tämä toimistotila tukee yrityksenne tavoitteita ja kasvua.
Tarjolla useita eri kokoisia tiloja samassa kohteessa (10 m², 22 m² ja 34 m²) – kysy lisää vaihtoehdoista!
Posti / palvelupiste: Noin 140m päässä.
