Vuokrataan toimistotilat - Jyväskylä
Kävelykatu 18, Kauppakatu 18, Keskusta, 40100 Jyväskylä #10861343
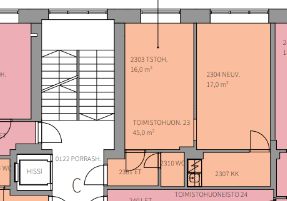
Vuokrataan heti vapaa 45 m2 toimistohuoneisto Jyväskylän keskustasta!
Osoite
Kauppakatu 18, 40100 Jyväskylä
Tilatyyppi
Toimistotilaa
45 m2
Muuta
Vuokrataan siisti ja kompakti huoneisto Jyväskylän ydinkeskustasta! Hissillisen talon 2. kerroksessa sijaitsevassa huoneistossa on kaksi valoisaa huonetta sekä oma keittiö ja WC. Ilmalämpöpumput viilentävät tilaa kesäisin. Soita ja kysy lisätietoja!
Vapautuu
Kysy
Rakennusvuosi
1939
Kerros
2
Ota yhteyttä
Infonia Oy
Kauppakatu 18 A, 40100 Jyväskylä
Näytä puhelinnumero
+358 405041401
Jukka Akselin
Näytä puhelinnumero
+358 405041401
Pyydä lisätietoa
