Vuokrataan toimistotilat - Helsinki
Mekaanikonkatu 21, Herttoniemi, 00880 Helsinki #10861337
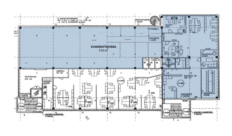
Varasto- ja toimistotilaa Helsingin Herttoniemessä.
Vuokrattavana 510 m² toimitila, joka koostuu n. 280 m² kevytvarastosta ja n. 230 m² toimistotilasta. Tila sijaitsee kiinteistön 3. kerroksessa. Huonekorkeus noin 3 metriä, mikä mahdollistaa joustavan käytön varastoinnista toimistotoimintaan. Tilaan on tavarahissiyhteys. Vapautuminen 1.9.2026.
Mekaanikonkatu 21 on hyvien kulkuyhteyksien varrella sijaitseva teollisuuskiinteistö Helsingin Herttoniemessä.
Kysy lisää numerosta 044 723 4700 tai info@bref.fi. Palvelumme on tilanhakijoille ilmainen.
Bureau Real Estate Finland Oy
Lars Sonckin kaari 16, 02600 Espoo
Näytä puhelinnumero
0447234700
Bureau Real Estate Finland Oy
https://www.bref.fi