Vuokrataan tuotantotilat, varastotilat - Espoo
Kiilaniityntie 1, Koskelo, 02920 Espoo #10861226
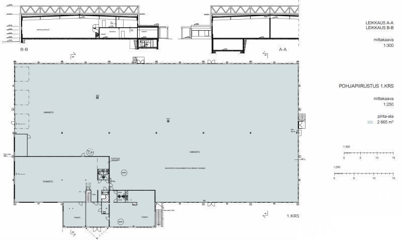
Kokonainen 3230 m² varasto- / tuotantokiinteistö hyvällä paikalla Kehä III:n varrella.
Osoite
Kiilaniityntie 1, 02920 Espoo
Tilatyyppi
Tuotantotilaa
3230 m2
Varastotilaa
3230 m2
Yhteensä
3230 m2
Pohjapiirros
Kiinteistö
Kokonainen kiinteistö yhdelle käyttäjälle.
Kaksi lastaustaskua, sisäänajoramppi, siistit toimistot ja mahdollisuus myymälätilaan
Soveltuu varastokäyttöön, tuotantotilaksi tai vaikka elintarvikealan toimijalle.
Kaksi lastaustaskua, sisäänajoramppi, siistit toimistot ja mahdollisuus myymälätilaan
Soveltuu varastokäyttöön, tuotantotilaksi tai vaikka elintarvikealan toimijalle.
Vapautuu
sopimuksen mukaan
Kerros
1-2
Energiatehokkuusluokka
Ei lain edellyttämää energiatodistusta
Katutasossa
Lastauslaituri
Ota yhteyttä
ScanReal Oy LKV
Opus Business Park
Hitsaajankatu 24
00810 Helsinki
info@scanreal.fi
Puh:
Näytä puhelinnumero
020 730 8830
Sopivat toimitilat yhdellä otolla!
Kartoitamme toimitilatarpeesi ja etsimme yrityksellesi parhaiten sopivat vapaat toimitilat. Koska vuokranantajat maksavat palvelumme, on tämä yrityksellesi veloituksetonta.
OTA YHTEYTTÄ - SOVI NÄYTTÖ!
Kaikki kohteemme eivät ole netissä, kerro tilatarpeesi niin kartoitamme vaihtoehdot.
Palvelumme on tilanhakijalle ilmainen
Pyydä lisätietoa
