Vuokrataan liiketilat - Espoo
Henttaan Puistokatu 4, Suurpelto, 02250 Espoo #10861170
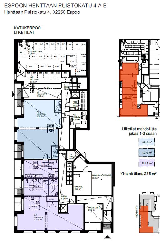
Liiketilaa asuintalon kivijalassa Espoon Suurpellossa.
Tämä 133,5 m² liiketila sijaitsee näkyvällä paikalla kiinteistön katutasossa. Tilan korkea huonekorkeus mahdollistaa monenlaisen käytön.
Henttaan puistokatu 4 sijaitsee Espoon kehittyvällä Suurpellon alueella. Puistomaisella alueella on paljon asutusta ja vieressä sijaitsee Kauppakeskus Suuris. Suurpeltoon on hyvät bussiyhteydet. Lyhyt ajomatka Turunväylälle ja Länsiväylälle.
Kysy lisää numerosta 044 723 4700 tai info@bref.fi. Palvelumme on tilanhakijoille ilmainen.
Bureau Real Estate Finland Oy
Lars Sonckin kaari 16, 02600 Espoo
Näytä puhelinnumero
0447234700
Bureau Real Estate Finland Oy
https://www.bref.fi