Vuokrataan toimistotilat - Helsinki
Hiilikatu 3, Salmisaari, 00180 Helsinki #10861162
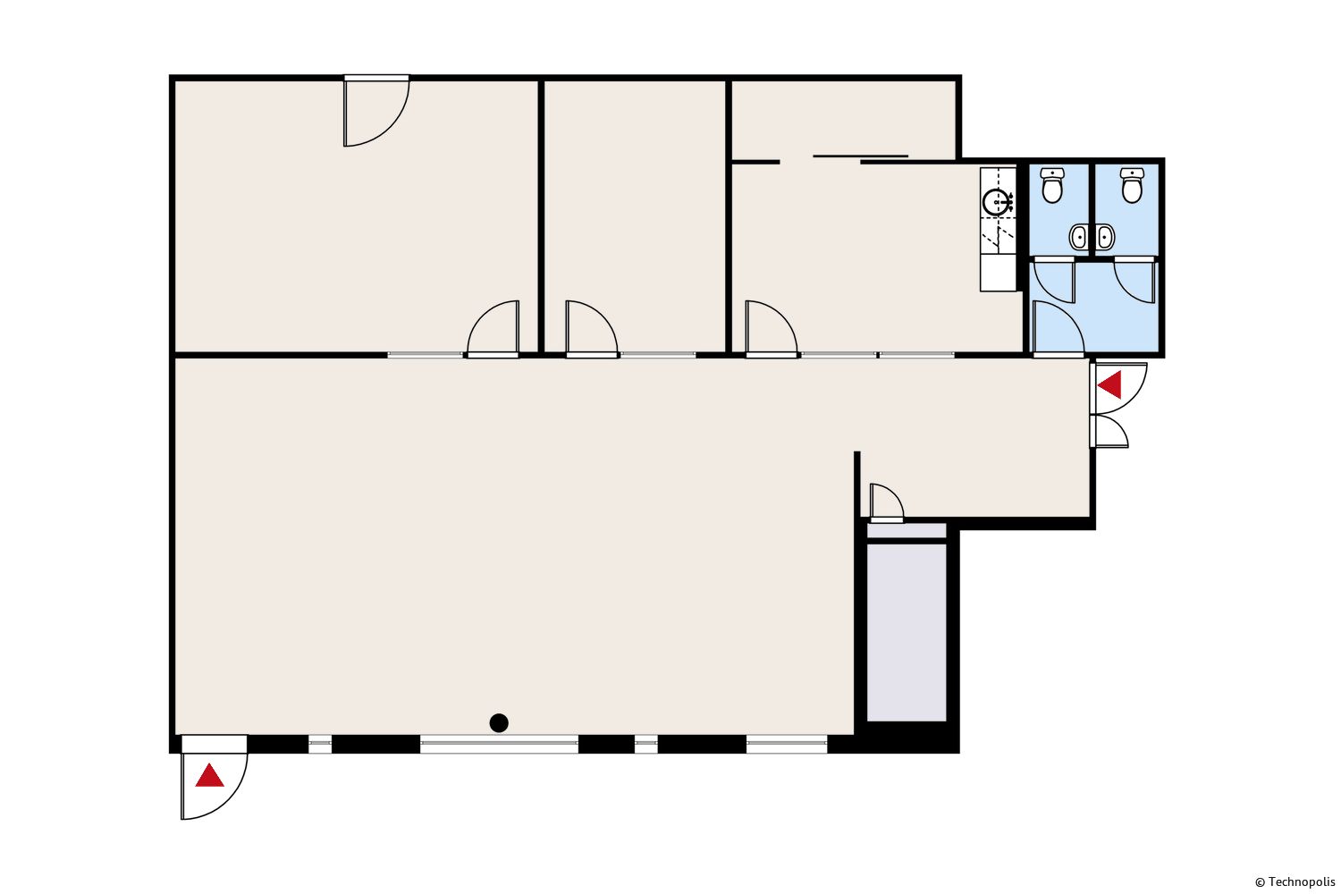
Vuokrataan Technopolis Ruoholahdessa Helsingissä ensimmäisen kerroksen valoisa ja korkea toimisto. Tilassa avara avotila, iso neuvottelutila, yksi pienempi huone, oma keittiö ja wc-tilat. Mahdollisuus omaan sisäänkäyntiin katutasosta, ja yhdistettävissä viereisen 255 m² tilan kanssa. Toimitila on ilmastoitu, mikä varmistaa miellyttävät työskentelyolosuhteet vuoden ympäri.
Tila on mahdollista vuokrata myös kalustettuna. Saatavilla ovat lisäksi työtilan suunnittelu- ja muuttopalvelut. Ota yhteyttä ja tule tutustumaan paikan päälle.
Technopolis Ruoholahden kampus sijaitsee Länsiväylän varrella Salmisaaren suositulla yritysalueella. Merellinen Salmisaari tunnetaan erinomaisista liikenneyhteyksistä, ja sinne on helppo tulla sekä autolla että julkisilla kulkuneuvoilla. Kampuksella on loistavat pysäköintimahdollisuudet.
Technopolis Ruoholahti tarjoaa laadukkaita ja tarpeidenne mukaan helposti muunneltavia toimitiloja. Kampukselta löydät arjen tueksi myös monipuoliset palvelut, jotka tekevät päivistäsi sujuvia. Palveluihin kuuluvat kehuttu aulapalvelu, tyylikkäät kokoustilat, kaksi suosittua ravintolaa ja moderni kuntosali.
Technopolis
Elektroniikkatie 8 FIN-90590 Oulu
Näytä puhelinnumero
046 712 0000
Hanna Peltola
Näytä puhelinnumero
050 514 3746
Technopolis on työympäristöjen asiantuntija. Tarjoamme joustavia ja tehokkaita toimitiloja sekä niihin liittyviä palveluita. Hoidamme kaiken työtilojen suunnittelusta sekä aula- ja kokouspalveluista ravintoloihin ja siivoukseen. Asiakaskokemus ja sen kehittäminen ovat toimintamme ytimessä. Meillä on 14 kampusta, joissa toimii 1200 asiakasyritystä ja niiden yli 30 000 työntekijää neljässä maassa Euroopassa.
https://technopolisglobal.com/fi