Vuokrataan toimistotilat - Tampere
Haarlankatu 4, Onkiniemi, 33230 Tampere #10861158
Osoite
Haarlankatu 4, 33230 Tampere
Tilatyyppi
Toimistotilaa
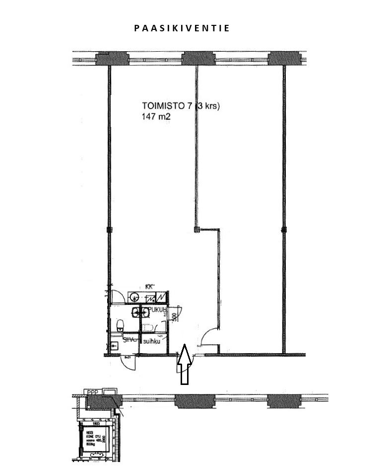
147 m2
Muuta
1.9. vapautumassa 3. kerroksessa toimistotila kooltaan 147 m2. Kulkuyhteys portaita tai hissiä käyttäen. Käytävällä myös reilun kokoinen tavarahissi, joten toimitilaan saa kuljetukset hyvin onnistumaan.
Ikkunat Pispalanharjun suuntaan.
Avotilaa joka on jaettu kahteen osaan. Keittiönurkkaus, wc, suihku ja siivouskomero. Ovipuhelin.
Ole yhteydessä, mennään tutustumaan paikan päälle:
Annina Niemi
Myyntipäällikkö, LKV
annina.niemi@catella.com
040 4812 220
Tilanhakijalle palvelumme ovat maksuttomia.
Catella Property Oy on valtakunnallinen toimitilojen vuokraukseen ja myyntiin keskittynyt kiinteistönvälitysyritys.
Kysy paikallisilta ammattitaitoisilta välittäjiltämme myös muita välityksessämme olevia toimitilakohteita.
Välittäjiemme yhteystiedot ja lisää välitettäviä tilakohteita verkkosivuillamme: www.toimitilat.catella.fi.
Ota yhteyttä!
Ikkunat Pispalanharjun suuntaan.
Avotilaa joka on jaettu kahteen osaan. Keittiönurkkaus, wc, suihku ja siivouskomero. Ovipuhelin.
Ole yhteydessä, mennään tutustumaan paikan päälle:
Annina Niemi
Myyntipäällikkö, LKV
annina.niemi@catella.com
040 4812 220
Tilanhakijalle palvelumme ovat maksuttomia.
Catella Property Oy on valtakunnallinen toimitilojen vuokraukseen ja myyntiin keskittynyt kiinteistönvälitysyritys.
Kysy paikallisilta ammattitaitoisilta välittäjiltämme myös muita välityksessämme olevia toimitilakohteita.
Välittäjiemme yhteystiedot ja lisää välitettäviä tilakohteita verkkosivuillamme: www.toimitilat.catella.fi.
Ota yhteyttä!
Vapautuu
Vapaa
Kerros
3
Ota yhteyttä
Catella Property Oy
Hämeenkatu 13b A, 33100 Tampere
Näytä puhelinnumero
010 5220 100
Annina Niemi
Näytä puhelinnumero
040 4812 220
Pyydä lisätietoa
