Vuokrataan toimistotilat, liiketilat, näyttelytilat, hoivatilat, muut tilat - Jyväskylä
Kankitie 10, 40320 Jyväskylä #10861146
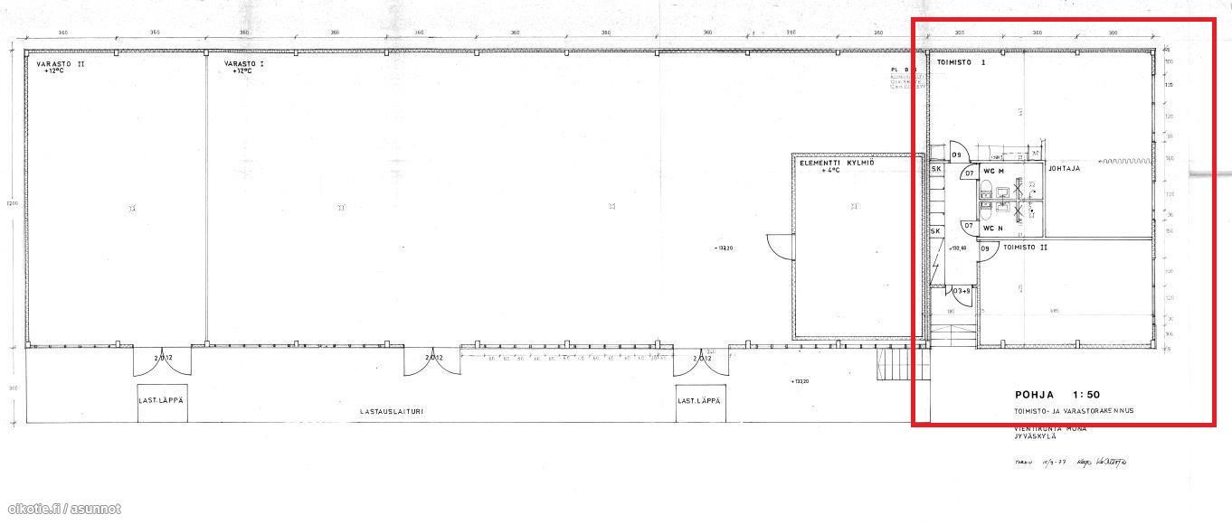
Vuokrataan seppälänkankaan teollisuusalueelta toimistotilaa.
Pohjakuvasta poiketen, toimistohuoneita on nyt enemmän eli neljä kappaletta (kuvat).
Kaksi vessaa ja keittiö. Huom! Vuokra käsittää lämmön ja sähkön. Tila on alviton, jotenka sitä ei siihen lisätä. Sopii hyvin vaikka hierojille jne.
Mahdollisuus sopia ison piha-alueen käytöstä.
Osoite
Kankitie 10, 40320 Jyväskylä
Tilatyyppi
Toimistotilaa
1 - 105 m2
Liiketilaa
1 - 105 m2
Näyttelytilaa
1 - 105 m2
Hoivatilaa
1 - 105 m2
Muuta tilaa
1 - 105 m2
Yhteensä
5 - 105 m2
Pohjapiirros
Vuokra
600
Vuokraan sisältyy sähkö, vesi
Vapautuu
Heti
Ota yhteyttä
K&K Vuokrauspalvelu
Mäntyhaantie 6
33800
TAMPERE
Puh.
Näytä puhelinnumero
044 2795494
Pyydä lisätietoa
