Vuokrataan toimistotilat - Helsinki
Sahaajankatu 24, 00880 Helsinki #10861136
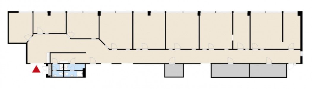
Koko kerroksen tila, josta voidaan lohkaista myös pienimpi tila. Osa tilasta sopii myös tuotanto-. ja/tai varastotilaksi.
Helsingin Sahaajankatu 24 tilat soveltuvat erityisesti teollisuusalan toimijoille, joilla on tarvetta toimisto-, logistiikka- ja tuotantotiloille. Tilat ovat muokattavissa vuokralaisen tarpeen mukaan. Kiinteistöstä löytyy myös tilava tavarahissi.
Osoite
Sahaajankatu 24, 00880 Helsinki
Tilatyyppi
Toimistotilaa
1044 m2
Kulkuyhteydet
Kiinteistö sijaitsee Herttoniemessä. Kiinteistön pihalla pysäköintipaikkoja. Bussilla 79 yhteys Herttoniemen sekä Siilitien metroasemille.
Vapautuu
Kysy
Rakennusvuosi
1991
Ota yhteyttä
Pyydä lisätietoa
