Vuokrataan toimistotilat, varastotilat, muut tilat - Vantaa
Meiramitie 3/Koivuhaantie 2-4, Koivuhaka, 01300 Vantaa #10861116
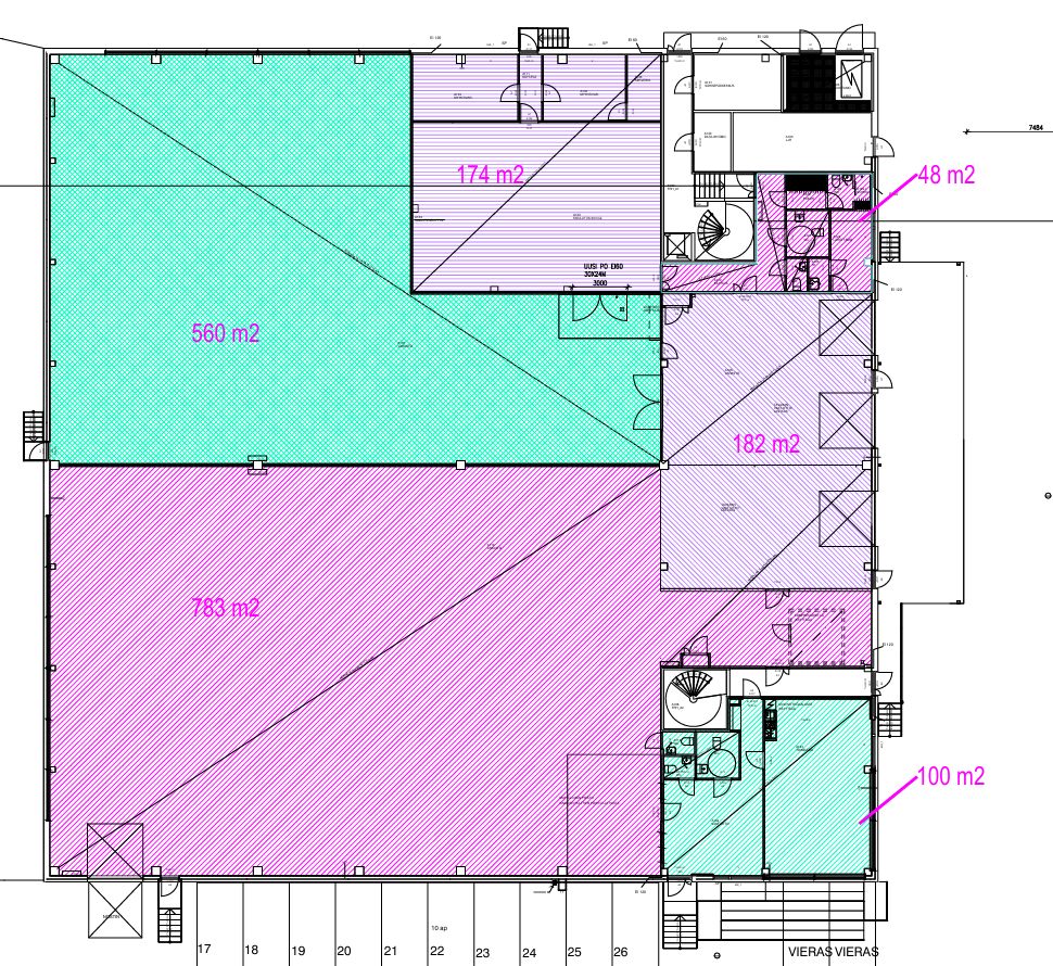
Vuokrattavana nykyaikaista, monikäyttöistä toimisto-/varastotilaa.
Osoite
Meiramitie 3/Koivuhaantie 2-4, 01300 Vantaa
Tilatyyppi
Toimistotilaa
174 m2
Varastotilaa
560 m2
Muuta tilaa
139 m2
Yhteensä
873 m2
Kiinteistö
Vuokrattavana nykyaikaista, monikäyttöistä varastotilaa. Varaston vapaa korkeus on noin 8 metriä. Lattian kantavuus, pistekuorma 5 tn. Tilan yhteydessä vuokrataan toimisto 174 m2, sosiaalitila 48 m2 sekä yhteinen lastausalue, josta osuus 91m2.
Sijainti
Koivuhaka, Vantaa
Pysäköinti
Kiinteistön pihalla on pysäköintipaikkoja
Palvelut
-Lounasravintola
Kulkuyhteydet
-Bussi
-Oma auto
-Oma auto
Vapautuu
Heti
Kerros
1
Energiatehokkuusluokka
Ei lain edellyttämää energiatodistusta
Katutasossa
Näkyvällä paikalla
Lastauslaituri
Ota yhteyttä
REALIUM OY LKV
Tammasaarenkatu 1, 00180 Helsinki
Vaihde:
Näytä puhelinnumero
010 326 346
Tuomo Mäkelä
tuomo.makela@realium.fi
p.
Näytä puhelinnumero
044 050 1158
Joel Keto
joel.keto@realium.fi
p.
Näytä puhelinnumero
045 317 0330
KAIKKI TILAVAIHTOEHDOT KERRALLA!
SOITA - MEILAA JA TILAA NÄYTTÖ!
Ilmainen palvelu tilanhakijoille.
Kartoitamme parhaat tilavaihtoehdot.
Kaikki kohteet eivät ole netissä.
Pyydä lisätietoa
