Vuokrataan varastotilat - Espoo
Lanttikatu 1, Mikkelä, 02770 Espoo #10861115
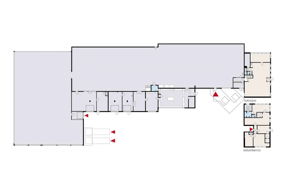
Vuokrataan Espoon Mikkelästä varasto-/toimistotila kokonaisuus 2700m2
Osoite
Lanttikatu 1, 02770 Espoo
Tilatyyppi
Varastotilaa
2700 m2
Tilajako
Jaettavissa
Varaston voi jakaa kolmeen osaan
Kiinteistö
Vuokrataan Espoon Mikkelästä Kehä III välittömästä läheisyydestä toimiva katutason varasto-/teollisuus-/toimistotila kokonaisuus. Varastotilaan johtaa lastauslaituri, kaksi lastaustaskua. Käytössä myös kolme pakettiautolla sisään ajettavaa nosto-ovea. Tilan itäpäädyssä sijaitseva n. 350 toimisto-osuuteen kuuluvat kellarikerroksen sosiaalitilat. Vuokralaisen käytössä myös asfaltoitu ja aidattu lukittavalla portilla oleva piha-alue. Varasto mahdollista jakaa kolmeen osaan. Soita ja kysy lisää.
Vapautuu
01.07.2026
Energiatehokkuusluokka
Ei lain edellyttämää energiatodistusta
Katutasossa
Näkyvällä paikalla
Jaettavissa
Ota yhteyttä
Comreal Oy LKV
Anna-Maija Hyppönen
Näytä puhelinnumero
050 534 8001
Läkkisepänkuja 6, 00620 Helsinki
Comreal on valtakunnallinen, asiantunteva ja aktiivinen kiinteistöalan kumppani, joka palvelee sekä kiinteistönomistajia että toimitilojen käyttäjiä. Toimintamme ydin on yksinkertainen: tarjota erinomaista palvelua kaikille.
Pyydä lisätietoa
