Vuokrataan varastotilat - Ylöjärvi
KOY Ylöjärven Kolmenkulmantien Talliosake tila 21, Mestarintie 1, 33470 Ylöjärvi #10861033
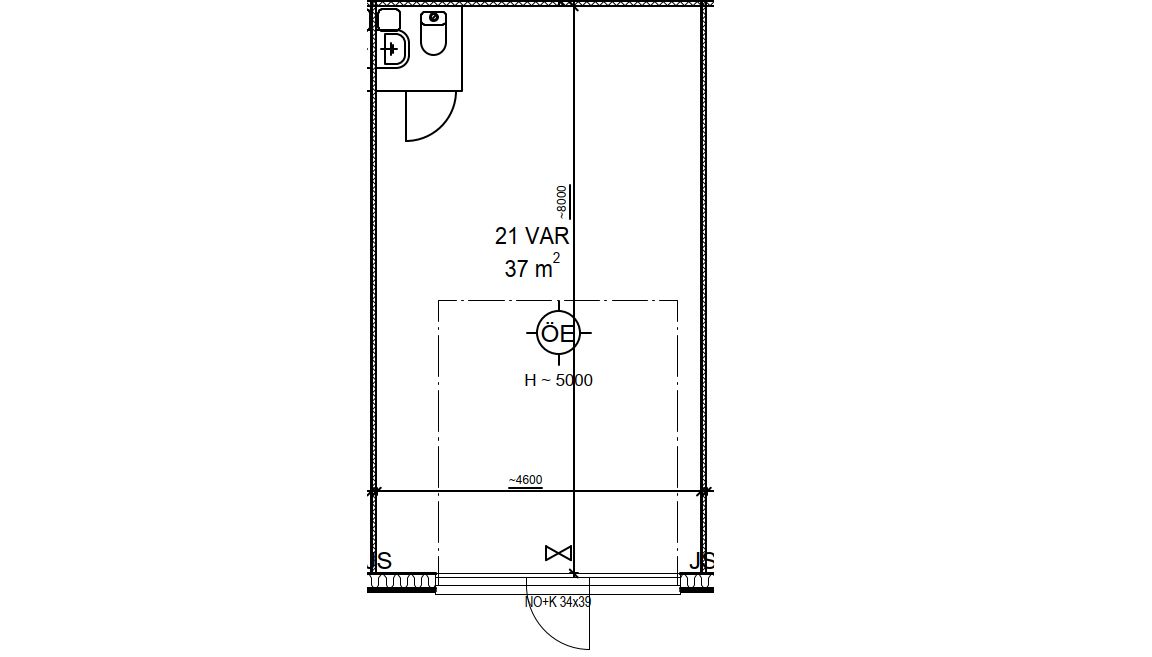
Ylöjärven Kolmenkulmantien Talliosakkeelta monikäyttöinen varasto, autotalli, harraste-, toimitila 21. Tilassa varastotaso sekä wc. Tilalla myös autopaikka.
Osoite
Mestarintie 1, 33470 Ylöjärvi
Tilatyyppi
Varastotilaa
37 m2
Vuokra
450,00 €/kk
Kiinteistö
KOY Ylöjärven Kolmenkulmantien Talliosake
Sijainti
Suosittu Ylöjärven Kolmenkulmantien Talliosake sijaitsee loistavien liikenneyhteyksien varrella Tampereen vilkkaimmin liikennöidyn tien varressa. Ylöjärven keskustaan noin 1 km, Pirkkalaan noin 10 km ja Tampereen keskustaan noin 13km.
Muuta
Autolla sisään ajettava tila. Tilamitat: 8,01 (Pituus) 4,60 (Leveys) 5,00 (Korkeus).
Ovimitat: 3,40 (Leveys) 3,90 (Korkeus).
Käyttötarkoitusesimerkkejä: - toimitila - varastotila - yrityksen työtarvikevarasto / kalustovarasto - kimppatalli - harrastetila - bändikämppä - autotalli - moottoripyörätalli - mönkijätalli. Tila ei sovellu autokorjaamoksi eikä autopesulaksi.
Tila on sähkölämmitteinen. Vuokralainen tekee tilaan oman sähkösopimuksen. Vesi- ja sähkömaksu kulutuksen mukaan. Vakuus kahden kuukauden vuokraa vastaava määrä. Haetaan pitkäaikaista vuokralaista. Luottotiedot tarkistetaan.
Talliosake tuottaa joustavasti muunneltavia hallitiloja ympäri Suomen, joita yritykset ja yksityishenkilöt käyttävät tukikohtinaan erilaisille toiminnoille: yritys- ja liiketoimintaan, varastointiin sekä harrastuksiin.
Ovimitat: 3,40 (Leveys) 3,90 (Korkeus).
Käyttötarkoitusesimerkkejä: - toimitila - varastotila - yrityksen työtarvikevarasto / kalustovarasto - kimppatalli - harrastetila - bändikämppä - autotalli - moottoripyörätalli - mönkijätalli. Tila ei sovellu autokorjaamoksi eikä autopesulaksi.
Tila on sähkölämmitteinen. Vuokralainen tekee tilaan oman sähkösopimuksen. Vesi- ja sähkömaksu kulutuksen mukaan. Vakuus kahden kuukauden vuokraa vastaava määrä. Haetaan pitkäaikaista vuokralaista. Luottotiedot tarkistetaan.
Talliosake tuottaa joustavasti muunneltavia hallitiloja ympäri Suomen, joita yritykset ja yksityishenkilöt käyttävät tukikohtinaan erilaisille toiminnoille: yritys- ja liiketoimintaan, varastointiin sekä harrastuksiin.
Vapautuu
01.06.2026
Katutasossa
Näkyvällä paikalla
Ota yhteyttä
Talliosake Oy
Hannu Peltonen
Aluemyyntipäällikkö, Pirkanmaa ja Kanta-Häme
Näytä puhelinnumero
040 630 3150
Pyydä lisätietoa
