Vuokrataan toimistotilat, tuotantotilat, varastotilat - Helsinki
Mekaanikonkatu 19, Herttoniemi, 00880 Helsinki #10860996
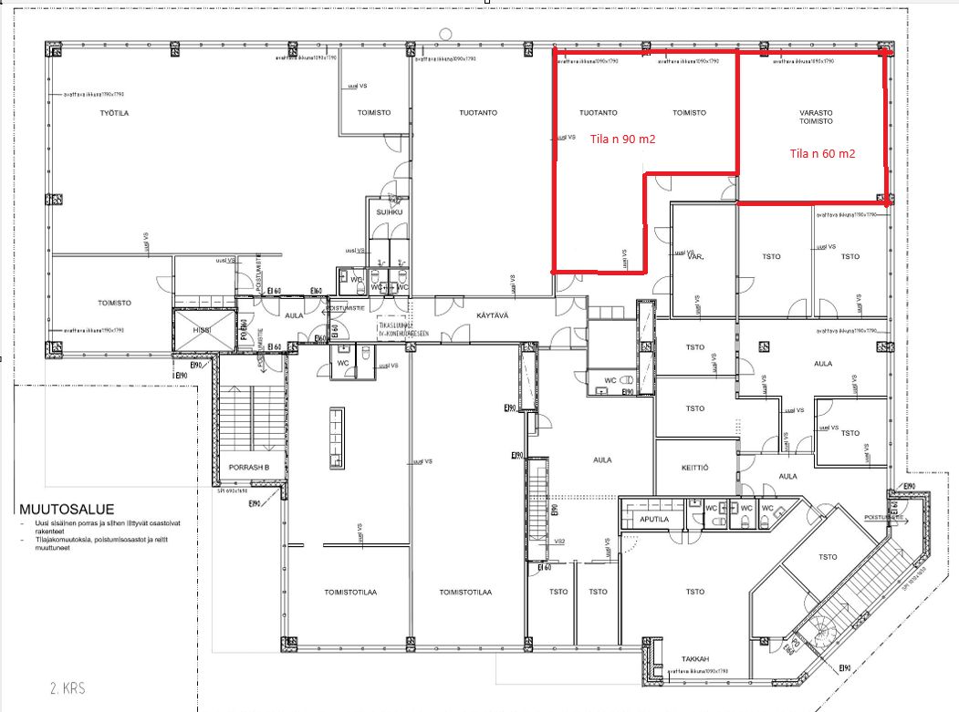
Vuokrataan Herttoniemessä n 60 m2 toimistotilaa, joka soveltuu myös pienimuotoiseen varastointiin tai tuotantoon.Tila toisessa kerroksessa mihin tavahissiyhteys. Yhteiskäyttöiset vessat käytävällä. Ks pohjakuvasta tilan sijainti 60 m2.
Erinomaiset liikenneyhteydet julkisilla.
Yhteystiedot: p. 045 261 6555/Mika tai 020 7290 710
Lisää kohteita: www.premises.fi
Kohteella ei ole lain edellyttämää energiatodistusta.Kerros: 2
Osoite
Mekaanikonkatu 19, 00880 Helsinki
Tilatyyppi
Toimistotilaa
60 m2
Tuotantotilaa
60 m2
Varastotilaa
60 m2
Yhteensä
60 m2
Kulkuyhteydet
Bussit ja Metro
Ota yhteyttä
CRE PREMISES
Puh. Näytä puhelinnumero 020 7290 710
Vantaankoskentie 14
01670 VANTAA
Pyydä lisätietoa
