Vuokrataan liiketilat, tuotantotilat, varastotilat - Helsinki
Mekaanikonkatu 19, Herttoniemi, 00880 Helsinki #10860980
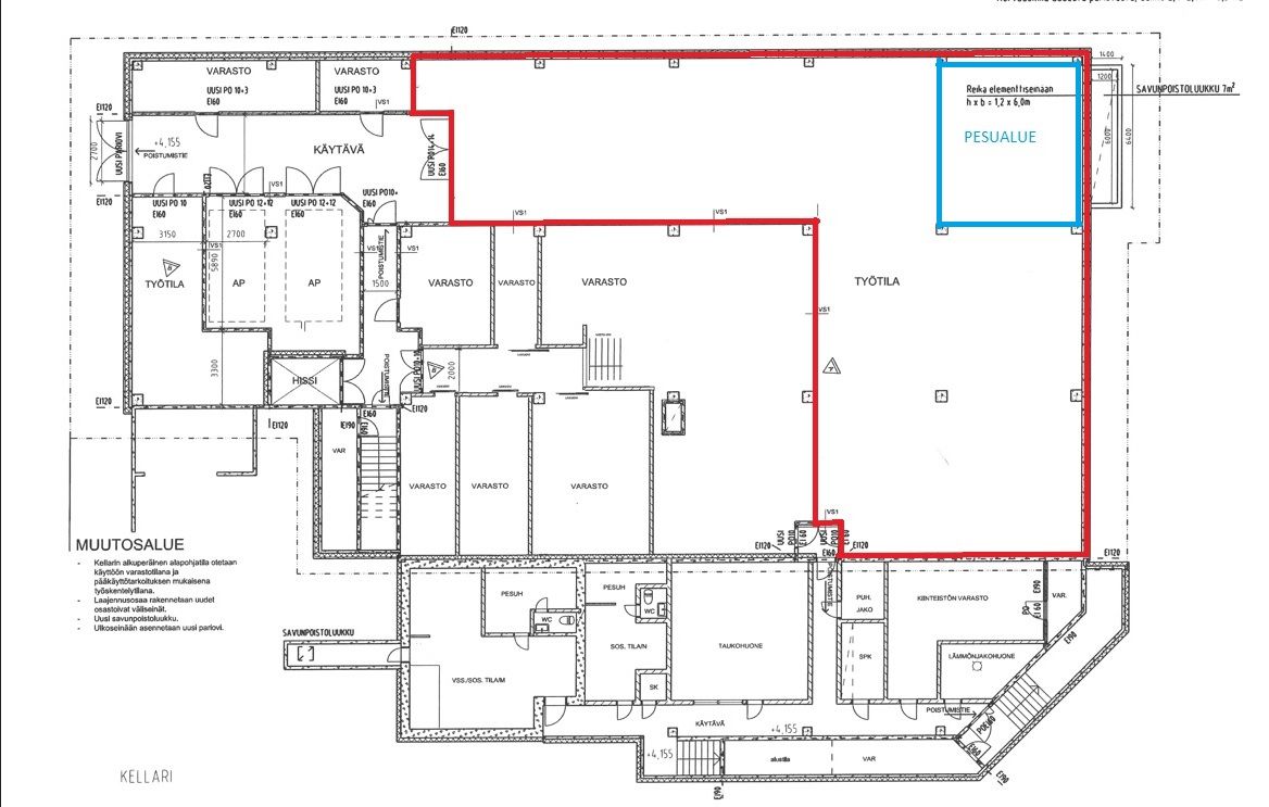
Vuokrataan Herttoniemessä n 400 m2 autonpesukäytössä ollut tila. Tila soveltuu myös tuotanto-/varastokäyttöön. Tila korkeus kuitenkin n. 2,3 metriä.
Erinomaiset liikenneyhteydet julkisilla.
Yhteystiedot: p. 045 261 6555/Mika tai 020 7290 710
Lisää kohteita: www.premises.fi
Kohteella ei ole lain edellyttämää energiatodistusta.Kerros: kellari
Osoite
Mekaanikonkatu 19, 00880 Helsinki
Tilatyyppi
Liiketilaa
400 m2
Tuotantotilaa
400 m2
Varastotilaa
400 m2
Yhteensä
400 m2
Kulkuyhteydet
Bussit ja Metro
Ota yhteyttä
CRE PREMISES
Puh. Näytä puhelinnumero 020 7290 710
Vantaankoskentie 14
01670 VANTAA
Pyydä lisätietoa
