Vuokrataan toimistotilat - Helsinki
Valimotie 16, Pitäjänmäki, 00380 Helsinki #10860968
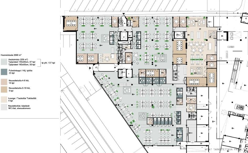
Nykyaikainen monitilatoimisto, joka on jaettavissa neljään osaan kokoluokissa: 336-2000 m2. Tilassa iso lounge, runsaasti avotoimistotilaa ja neuvottelutiloja. Tavanomaista korkeampi huonekorkeus (yli 3m). Hissi ja tavarahissi tilan sisäänkäynnin lähellä. Tyylikkäästi saneeratussa täyden palvelun kiinteistössä mm. oma lounasravintola, aulapalvelu, upeat saunatilat kattoterassilla ja runsaasti kokoustiloja. Sijainti Valimon juna-aseman välittömässä läheisyydessä. Ota yhteyttä,
palvelumme on tilanhakijoille ilmainen.
Näkyvällä paikalla
Hissi
Senaatin Notariaatti Oy LKV
Lämmittäjänkatu 4 A
FIN-00880 Helsinki
Tel:
Näytä puhelinnumero
+358 9 7745 100
