Vuokrataan toimistotilat, tuotantotilat, varastotilat - Tampere
Huppionmäenkatu 5-7, Rusko, 33720 Tampere #10860947
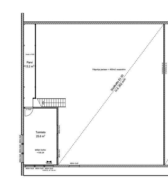
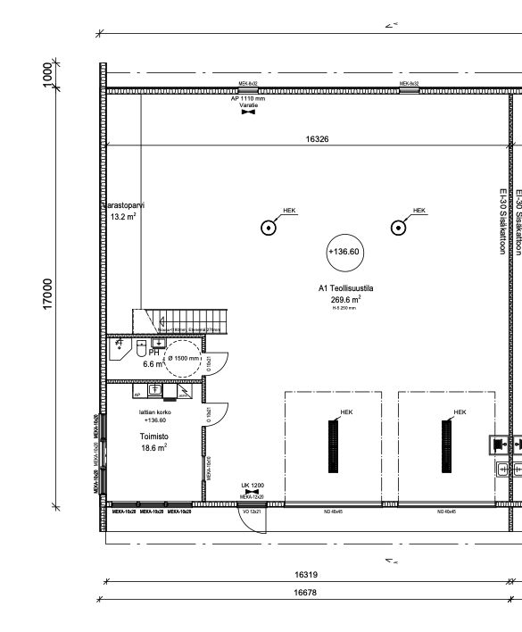
Hallin päätytila Ruskossa 310m2
Osoite
Huppionmäenkatu 5-7, 33720 Tampere
Tilatyyppi
Toimistotilaa
20 m2
Tuotantotilaa
310 m2
Varastotilaa
310 m2
Yhteensä
310 m2
Kiinteistö
Ruskon teollisuusalueella Hervannassa vuokrattavana valoisaa ja siistiä toimitilaa. Vapaana päätytila A1, joka muodostaa 310 m2 tilan. Kaksi nosto-ovea ja öljynerotuskaivot. Tilassa on myös siistejä toimisto- ja sosiaalitiloja, kahdessa kerroksessa. Korkeus hallissa noin 5,2 metriä.
Kohteessa on maalämpö, tilakohtainen energiamittaus, koneellinen ilmanvaihto, älylukot, valokuitu ja epoksilattiat. Asfaltoitu piha on ajettavissa ympäri.
Vuokrataan vain alvilliseen käyttöön.
Osa kuvista ennen hallin käyttöönottoa.
Kohteessa on maalämpö, tilakohtainen energiamittaus, koneellinen ilmanvaihto, älylukot, valokuitu ja epoksilattiat. Asfaltoitu piha on ajettavissa ympäri.
Vuokrataan vain alvilliseen käyttöön.
Osa kuvista ennen hallin käyttöönottoa.
Vapautuu
Kysy
Kerros
1.-2.
Ota yhteyttä
Logistila Oy
Kalevan puistotie 22 LT 4, 33500 Tampere
Jukka Nukari
Näytä puhelinnumero
0440759789
Pyydä lisätietoa
