Vuokrataan liiketilat - Helsinki
Mannerheimintie 2, 00100 Helsinki #10860911
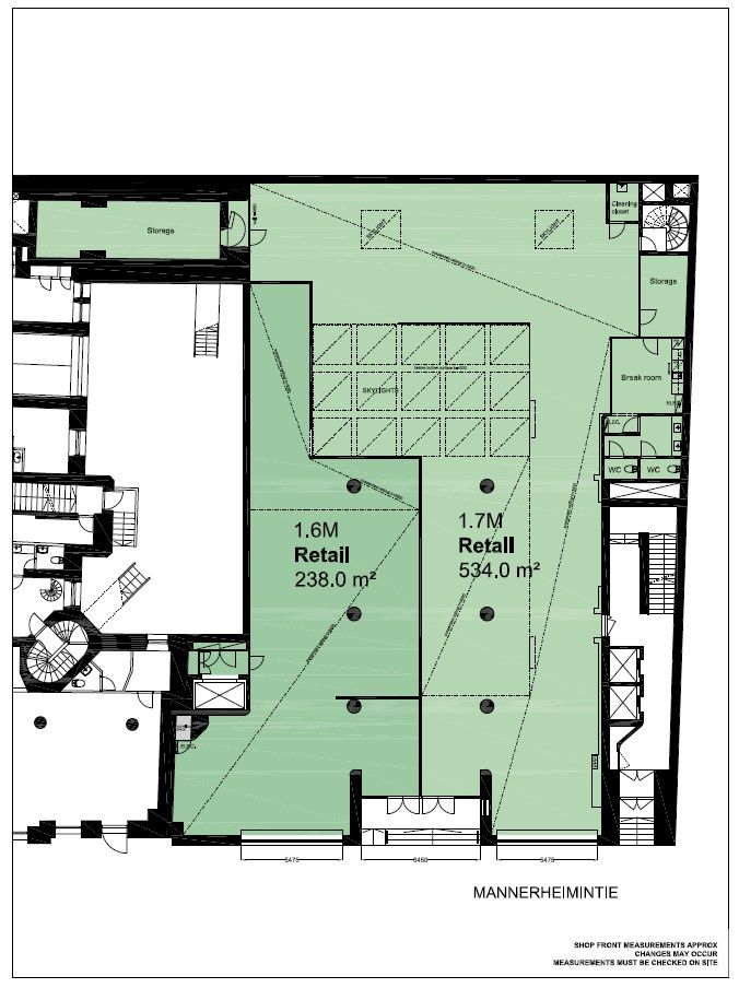
Tarjolla ainutlaatuinen mahdollisuus vuokrata edustava katutason liiketila yhdeltä Helsingin näkyvimmistä ja vilkkaimmista paikoista, osoitteesta Mannerheimintie 2. Tämä 772 m² suuruinen liiketila sijaitsee keskeisellä paikalla kaupungin ytimessä, erinomaisien kulkuyhteyksien varrella ja vilkkaan jalankulkuliikenteen keskellä. Sijainti tarjoaa loistavat edellytykset monenlaiselle liiketoiminnalle ja takaa erinomaisen näkyvyyden.
Tilat ovat muunneltavissa tarpeiden mukaan, ja ne on mahdollista jakaa tai yhdistää kahdesta vierekkäisestä liiketilasta (238 m² + 534 m²). Tällä hetkellä tiloissa toimivat tunnetut sisustusalan toimijat Vepsäläinen ja BoConcept.
Liiketilojen vuokraus ja tiedustelut: C&W Retail Services, puh. 0108368400, retail.fi@cushwake.com.
Bulevardi 1/ Mannerheimintie 2 komea, vuonna 1890 valmistunut arvokiinteistö, sijaitsee Helsingin ydinkeskustassa, Mannerheimintien ja Bulevardin kulmassa. Jyhkeä talo on täynnä hienoja detaljeja, ulokkeita ja koristeita. Upea porraskäytävä, jonka upeat katto- ja seinämaalaukset vangitsevat katseen. Alun perin viehättävänä asuinrakennuksena toiminut kiinteistö on entisöity huolellisesti ja muokattu tehokkaasti toimitilakäyttöön sopivaksi. Talotekniikka ja tietoliikenteen vaatimukset vastaavat täysin nykypäivän vaatimuksia.
Ympäristöstä löytyy kaikki päivittäin tarvittavat palvelut. Kiinteistössä on oma parkkihalli 12 autolle. Lisäksi Erottajan pysköintihallin sisäänkäynti on kadun toisella puolella. Viihtyisyyttä alueella lisäävät lähellä sijaitsevat Vanha kirkkopuisto ja Esplanadin puisto.
Kohteen omistaa Sponda Oyj.
