Vuokrataan toimistotilat - Helsinki
Westport, Itämerenkatu 1, Ruoholahti, 00180 Helsinki #10860899
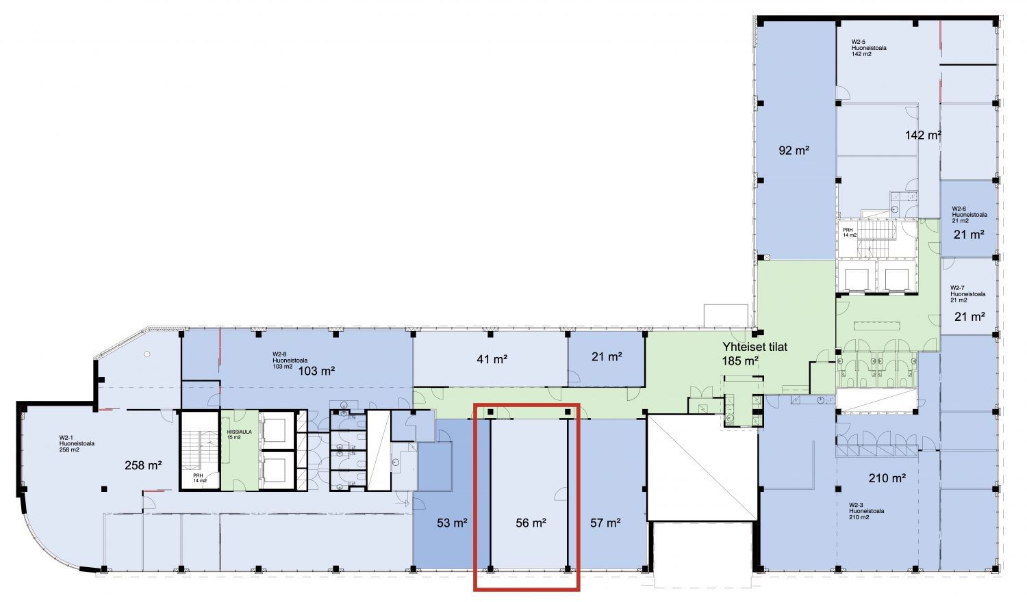
Toisen kerroksen 56 m² toimisto Ruoholahdesta
Osoite
Itämerenkatu 1, 00180 Helsinki
Tilatyyppi
Toimistotilaa
56 m2
Pohjapiirros
Virtuaaliesittely
Kiinteistö
Vilkkaassa, urbaanissa Ruoholahdessa, Länsisataman läheisyydessä sijaitseva toimistotila Westport on Helsingin läntinen portti maailmalle. Westportiin on helppo saapua julkisilla kulkuneuvoilla, autolla tai Baanaa pitkin pyörällä.
Modernin Westportin tilat ovat tyylikkäät ja tämän päivän vaatimuksia vastaavat. Tilojen yleisilme on kauttaaltaan valoisa ja raikas. Joustavat toimistotilat soveltuvat niin avo- kuin huonetoimistoksi toivomustesi mukaisesti.
Talossa vuokralaisia palvelevat kaksi 12 hengen ja kuusi neljän hengen neuvottelutilaa. Lisäksi käytettävissä on uusi 20 hengen studio, joka taipuu vaikkapa hybriditapahtumien kisakatsomoksi tai kokoustilaksi. Westportista löytyy myös nykyaikainen kuntosali sekä viihtyisät ja avarat sauna- ja kokoustilat. Katutasossa ravintola Gresa tarjoilee edullista, laadukasta lounasta. Gresa hoitaa myös kokoustarjoilut Westportin toimistoihin ja kokoustiloihin.
Ilmoituksen kuvat ovat yleiskuvia kiinteistön tiloista.
Modernin Westportin tilat ovat tyylikkäät ja tämän päivän vaatimuksia vastaavat. Tilojen yleisilme on kauttaaltaan valoisa ja raikas. Joustavat toimistotilat soveltuvat niin avo- kuin huonetoimistoksi toivomustesi mukaisesti.
Talossa vuokralaisia palvelevat kaksi 12 hengen ja kuusi neljän hengen neuvottelutilaa. Lisäksi käytettävissä on uusi 20 hengen studio, joka taipuu vaikkapa hybriditapahtumien kisakatsomoksi tai kokoustilaksi. Westportista löytyy myös nykyaikainen kuntosali sekä viihtyisät ja avarat sauna- ja kokoustilat. Katutasossa ravintola Gresa tarjoilee edullista, laadukasta lounasta. Gresa hoitaa myös kokoustarjoilut Westportin toimistoihin ja kokoustiloihin.
Ilmoituksen kuvat ovat yleiskuvia kiinteistön tiloista.
Vapautuu
Heti
Rakennusvuosi
1998
Kerros
2 / 9
Energiatehokkuusluokka
Ei lain edellyttämää energiatodistusta
Näkyvällä paikalla
Hissi
Ota yhteyttä
ScanReal Oy LKV
Opus Business Park
Hitsaajankatu 24
00810 Helsinki
info@scanreal.fi
Puh:
Näytä puhelinnumero
020 730 8830
Sopivat toimitilat yhdellä otolla!
Kartoitamme toimitilatarpeesi ja etsimme yrityksellesi parhaiten sopivat vapaat toimitilat. Koska vuokranantajat maksavat palvelumme, on tämä yrityksellesi veloituksetonta.
OTA YHTEYTTÄ - SOVI NÄYTTÖ!
Kaikki kohteemme eivät ole netissä, kerro tilatarpeesi niin kartoitamme vaihtoehdot.
Palvelumme on tilanhakijalle ilmainen
Pyydä lisätietoa
