Vuokrataan toimistotilat, liiketilat, tuotantotilat, varastotilat - Ylöjärvi
Vanha Vaasantie 14, Julkujärvi, 33470 Ylöjärvi #10860866
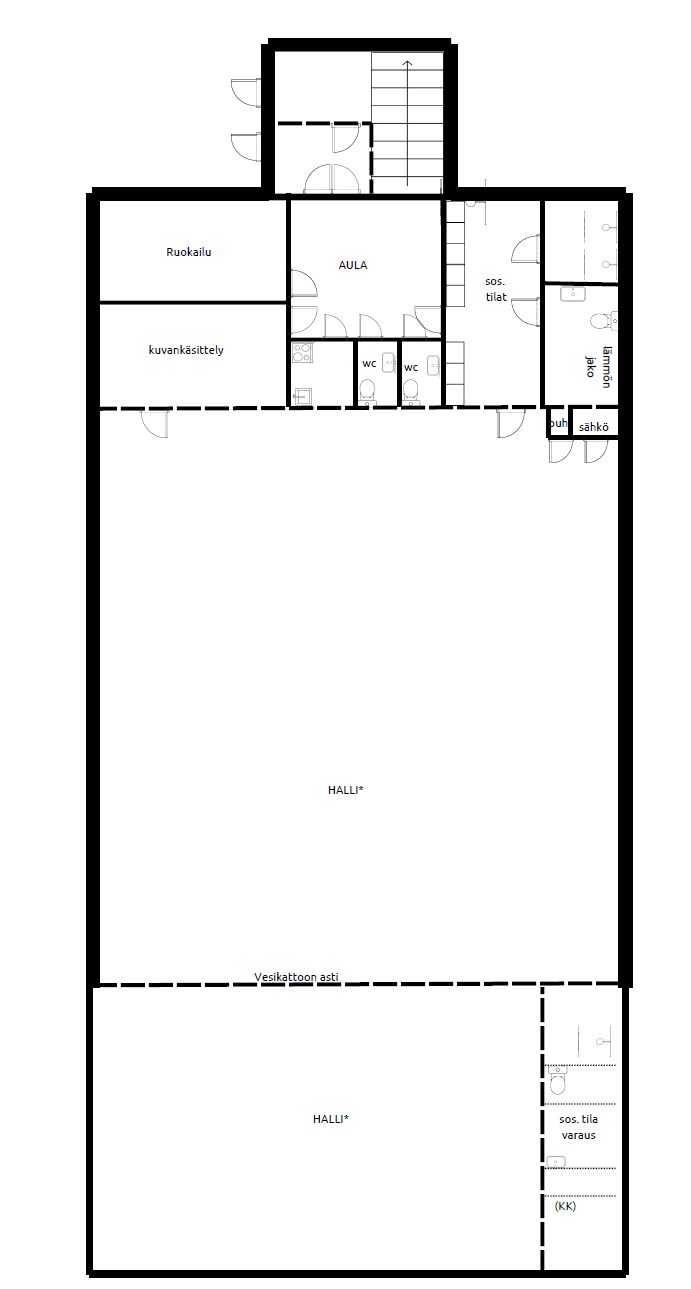
Hallitilaa Ylöjärvellä
Osoite
Vanha Vaasantie 14, 33470 Ylöjärvi
Tilatyyppi
Toimistotilaa
180 m2
Liiketilaa
55 m2
Tuotantotilaa
412 m2
Varastotilaa
412 m2
Yhteensä
55 m2
Kiinteistö
Elovainiossa vapautumassa vuokrattavaksi halli- ja toimistotilaa.
Tilaa on yhteensä 360 m2 sekä parvi 56 m2. Lisäksi on toimisto-/sosiaalitilaa 180 m2. Tilassa on WC, keittiö ja taukotila.
Hallin korkeus on 6 metriä. Hallissa on lattiakaivot ja voimavirta sekä nosto-/pariovet. Tilaa on mahdollista jakaa, mutta mieluiten vuokrataan yhdelle toimijalle.
Kiinteistön piha-alue on aidattu. Viereisten tonttien välisissä aidoissa on portit, joten rekalla mahtuu ajamaan ympäri, eikä tarvitse peruuttaa tielle.
Tilaa on yhteensä 360 m2 sekä parvi 56 m2. Lisäksi on toimisto-/sosiaalitilaa 180 m2. Tilassa on WC, keittiö ja taukotila.
Hallin korkeus on 6 metriä. Hallissa on lattiakaivot ja voimavirta sekä nosto-/pariovet. Tilaa on mahdollista jakaa, mutta mieluiten vuokrataan yhdelle toimijalle.
Kiinteistön piha-alue on aidattu. Viereisten tonttien välisissä aidoissa on portit, joten rekalla mahtuu ajamaan ympäri, eikä tarvitse peruuttaa tielle.
Vapautuu
Kysy
Kerros
1.-2.
Ota yhteyttä
Logistila Oy
Kauppakatu 14, 33210 TAMPERE
Ulla Lyytinen
Näytä puhelinnumero
040 776 0538
Pyydä lisätietoa
