Vuokrataan liiketilat - Oulu
Kirkkokatu 17, Keskusta, 90100 Oulu #10860846
Osoite
Kirkkokatu 17, 90100 Oulu
Tilatyyppi
Liiketilaa
41 m2
Muuta
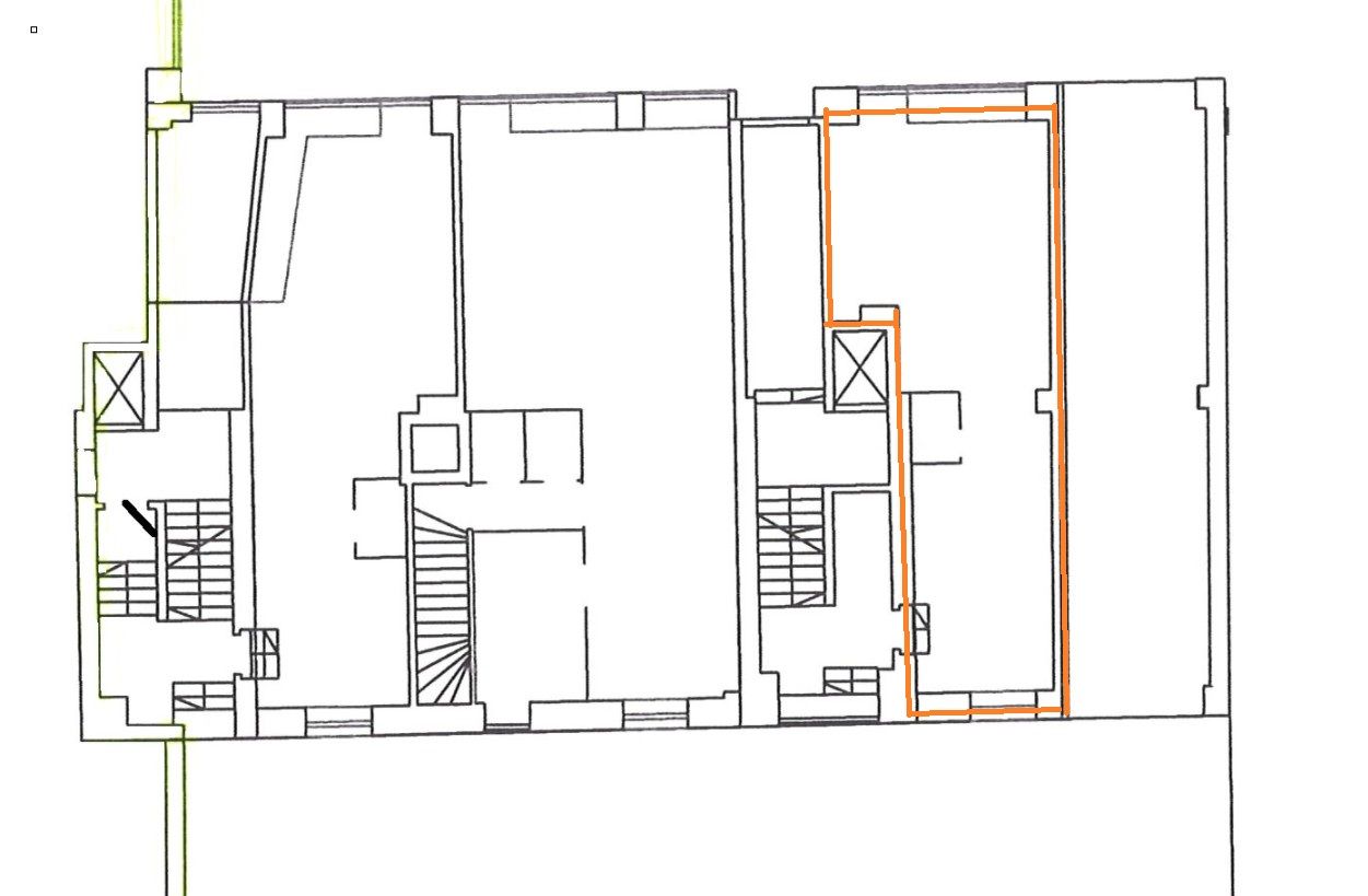
Vuokrattavana katutason liikehuoneisto Oulun Rotuaarilta, Kirkkokatu 17.
Liikehuoneisto sijaitsee Rotuaarin keskusaukiolla. Vieressä on mm Valkean ja Kivisydämen yksi kulkuaukoista.
Liikehuoneistossa on takaosan puolella wc-tila, sekä vesipiste käsienpesualtaalla liiketilan puolella.
Liiketila on selkeä pohjaratkaisultaan, eikä takaosan puolelle ole mahdotonta rakentaa kevyttä väliseinää, jos tarvetta työhuoneelle tms.
Huoneistossa on painovoimainen ilmanvaihto.
Pinta-ala 41 m2
Vuokra 40e/m2 (alv 0, ei lisätä) 1640e/kk.
Vesi- ja jätevesimaksu kulutuksen mukaan.
Oma sähkösopimus suoraan sähköyhtiölle.
Vakuus 4920e (3 kk vuokrasummaa vastaava summa).
Huoneisto on heti vapaa.
Liikehuoneisto sijaitsee Rotuaarin keskusaukiolla. Vieressä on mm Valkean ja Kivisydämen yksi kulkuaukoista.
Liikehuoneistossa on takaosan puolella wc-tila, sekä vesipiste käsienpesualtaalla liiketilan puolella.
Liiketila on selkeä pohjaratkaisultaan, eikä takaosan puolelle ole mahdotonta rakentaa kevyttä väliseinää, jos tarvetta työhuoneelle tms.
Huoneistossa on painovoimainen ilmanvaihto.
Pinta-ala 41 m2
Vuokra 40e/m2 (alv 0, ei lisätä) 1640e/kk.
Vesi- ja jätevesimaksu kulutuksen mukaan.
Oma sähkösopimus suoraan sähköyhtiölle.
Vakuus 4920e (3 kk vuokrasummaa vastaava summa).
Huoneisto on heti vapaa.
Vapautuu
Kysy
Ota yhteyttä
Catella Property Oy
Kirkkokatu 6, 5. krs, 90100 OULU
Näytä puhelinnumero
010 5220 100
Pekka Laurila-Harju
Näytä puhelinnumero
010 5220 603
Pyydä lisätietoa
