Vuokrataan varastotilat - Vantaa
Meiramitie 3 A-TALO, 01300 Vantaa #10860839
Hyvä ja siisti varasto/toimisto-kokonaisuus lähellä lentokenttää:
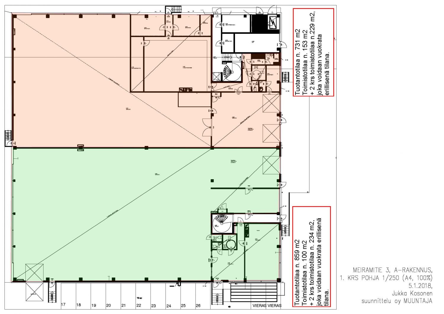
- varasto 560 m2, vapaa korkeus 8.m. Lattian kantavuus, pistekuorma 5 tn, jakautuva kuorma 3 tn/m?.
- toimisto 174 m2
- sos.tila 48 m2
- yhteinen lastausalue, josta osuus 91m2
STC Meiramitie. Tuotanto-, varasto- sekä toimistotilaa samassa kohteessa. Ihanteellinen pk-yrityksille, jotka tarvitsevat toimistoa varastotilojensa yhteyteen.
Osoite
Meiramitie 3 A-TALO, 01300 Vantaa
Tilatyyppi
Varastotilaa
873 m2
Kulkuyhteydet
STC Meiramitie sijaitsee Vantaan Koivuhaassa Tuusulanväylän ja Helsinki-Vantaan lentoaseman välittömässä läheisyydessä. Bussipysäkille 200 m, juna-asemalle ja lentokentälle 4 km.
Vapautuu
Kysy
Rakennusvuosi
2009
Liitetiedostot
Ota yhteyttä
Pyydä lisätietoa
