Vuokrataan tuotantotilat - Pirkkala
Ruutanakorventie 1, Huovin Teollisuusalue, 33960 Pirkkala #10860813
Osoite
Ruutanakorventie 1, 33960 Pirkkala
Tilatyyppi
Tuotantotilaa
455 - 800 m2
Muuta
Vuokrataan tuotanto/liiketilaa!
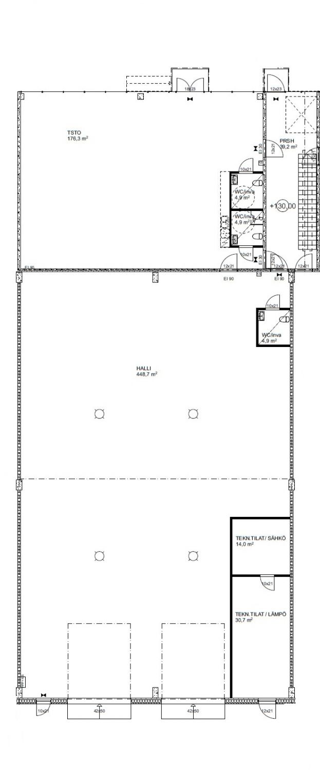
Uusi valmistuva kohde Pirkkalassa, kehätien varrella. Suora näkymä kovasti liikennöidylle Pirkkalan kehätielle joka takaa hyvän näkyvyyden. Vielä vapaana yksi vuokrattava halli, tilaa noin 450m2 ja toimistotilaa noin 175m2. Halliin on kaksi nosto-ovea ja toimisto sijaitsee hallissa kiinni.
- Hallin minimikorkeus 6m.
- 2x sähköllä toimivat nosto-ovet 4,2m x 5m
- Lattian kantavuus 15 kN/m2
- Toimiston korkeus noin 3,5m
- Parkkipaikat tilan edustalla
Soita ja kysy lisää!
Uusi valmistuva kohde Pirkkalassa, kehätien varrella. Suora näkymä kovasti liikennöidylle Pirkkalan kehätielle joka takaa hyvän näkyvyyden. Vielä vapaana yksi vuokrattava halli, tilaa noin 450m2 ja toimistotilaa noin 175m2. Halliin on kaksi nosto-ovea ja toimisto sijaitsee hallissa kiinni.
- Hallin minimikorkeus 6m.
- 2x sähköllä toimivat nosto-ovet 4,2m x 5m
- Lattian kantavuus 15 kN/m2
- Toimiston korkeus noin 3,5m
- Parkkipaikat tilan edustalla
Soita ja kysy lisää!
Vapautuu
01.05.2026
Rakennusvuosi
2026
Kerros
1
Ota yhteyttä
Kiinteistö-Tahkola Oy
Kuokkamaantie 4, 33800 Tampere
Näytä puhelinnumero
044 705 0522
Jani Kaisto
Näytä puhelinnumero
040 960 6424
Pyydä lisätietoa
