Vuokrataan tuotantotilat, varastotilat - Pirkkala
Jasperintie 310 B, 33960 Pirkkala #10860781
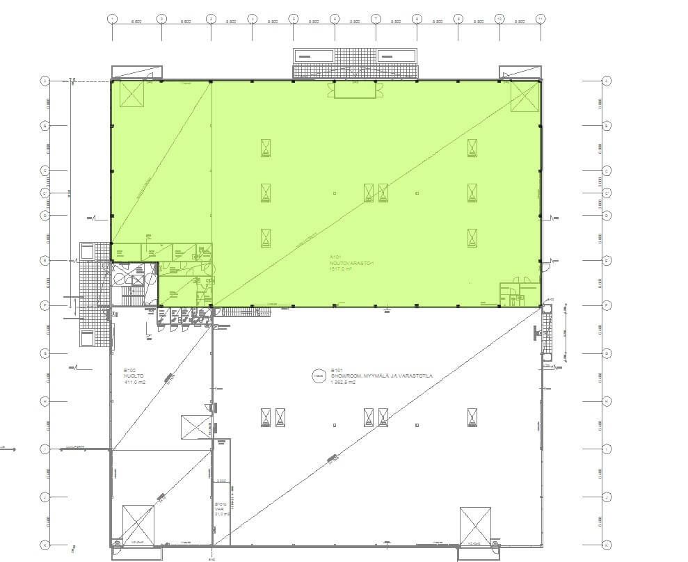
Syksyllä 2026 vapautuu vuokrattavaksi monipuolinen liiketila, joka soveltuu hyvin myymälä-, varasto- tai tuotantokäyttöön.
Osoite
Jasperintie 310 B, 33960 Pirkkala
Tilatyyppi
Tuotantotilaa
2074 m2
Varastotilaa
2074 m2
Yhteensä
2074 m2
Pohjapiirros
Kiinteistö
Tilassa on kaksi nosto-ovea, jotka mahdollistavat sujuvan tavaraliikenteen.
Kohde sijaitsee hyvällä paikalla, ja viereisessä rakennuksessa palvelee monipuolinen lounasravintola.
Ota yhteyttä, jos kiinnostuit !
Kohde sijaitsee hyvällä paikalla, ja viereisessä rakennuksessa palvelee monipuolinen lounasravintola.
Ota yhteyttä, jos kiinnostuit !
Kiinteistön palvelut
Sähköauton lataus
Vapautuu
Syksyllä 2026
Rakennusvuosi
2014
Kerros
1. - 2.
Ota yhteyttä
Arvo Premises Oy
info@arvotilat.fi
puh.
Näytä puhelinnumero
040 555 8106
puh.
Näytä puhelinnumero
044 5636 441
Pyydä lisätietoa
