Vuokrataan toimistotilat - Helsinki
Sahaajankatu 24, Herttoniemi, 00880 Helsinki #10860779
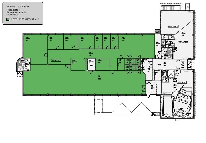
Nyt vuokrattavissa ensimmäisen kerroksen toimitila, joka koostuu noin 300 m² varastotilasta sekä 385 m² toimistotilasta. Tilaan on suorayhtetys lastauslaiturilta ja tilat ovat muokattavissa vuokralaisen tarpeisiin sopiviksi.
Sahaajankatu 24 on monipuolinen kiinteistö Herttoniemessä, joka soveltuu erinomaisesti teollisuusalan toimijoille. Tilat tarjoavat joustavasti toimisto-, logistiikka- ja tuotantoratkaisuja, ja ne voidaan muokata vuokralaisen tarpeiden mukaan. Kiinteistöstä löytyy myös tilava tavarahissi, joka helpottaa materiaalien käsittelyä.
Sijainti Itäväylän läheisyydessä mahdollistaa sujuvat yhteydet Helsingin keskustaan sekä muualle pääkaupunkiseudulle, ja Herttoniemen metroasema sekä bussiyhteydet ovat helposti saavutettavissa. Alueelta löytyy myös monipuolisia palveluita, kuten ravintoloita, päivittäistavarakauppoja ja muita arkea tukevia palveluja, jotka tekevät Herttoniemestä toimivan ja houkuttelevan sijainnin monenlaisille yrityksille.
Me Croisettella autamme teitä löytämään teille parhaat tilat! Olemme puolueettomia asiantuntijoita ja tunnemme toimitilamarkkinat, talot sekä tilat vankalla kokemuksella. Meillä on välityksessä kaikki toimitilat ja tiedämme niiden alustavat vuokratasot.
Tehtävämme on tehdä toimitilahaustanne onnistunutta ja helppoa. Saamme palkkiomme kiinteistönomistajalta, joten sinulle palvelumme on täysin maksuton. Jos kiinnostuit, ota yhteyttä!
Croisette Real Estate Partner
Erottajankatu 5 A 6, 00130 Helsinki
Näytä puhelinnumero
+358 400 585 857
Croisette Vuokraus
Näytä puhelinnumero
+358400585857
