Vuokrataan toimistotilat, työtilat - Porvoo
Mannerheiminkatu 7, 06100 Porvoo #10860710
Keskeisellä sijainnilla Porvoon keskustassa toisen kerroksen toimistotila! Vuokra: 11,90 €/m²/kk + alv
Osoite
Mannerheiminkatu 7, 06100 Porvoo
Tilatyyppi
Toimistotilaa
366 m2
Työtilaa
366 m2
Yhteensä
366 m2
Virtuaaliesittely
Vuokra
11,90 €/m²/kk + alv
Vuokraan sisältyy lämpö
Muuta
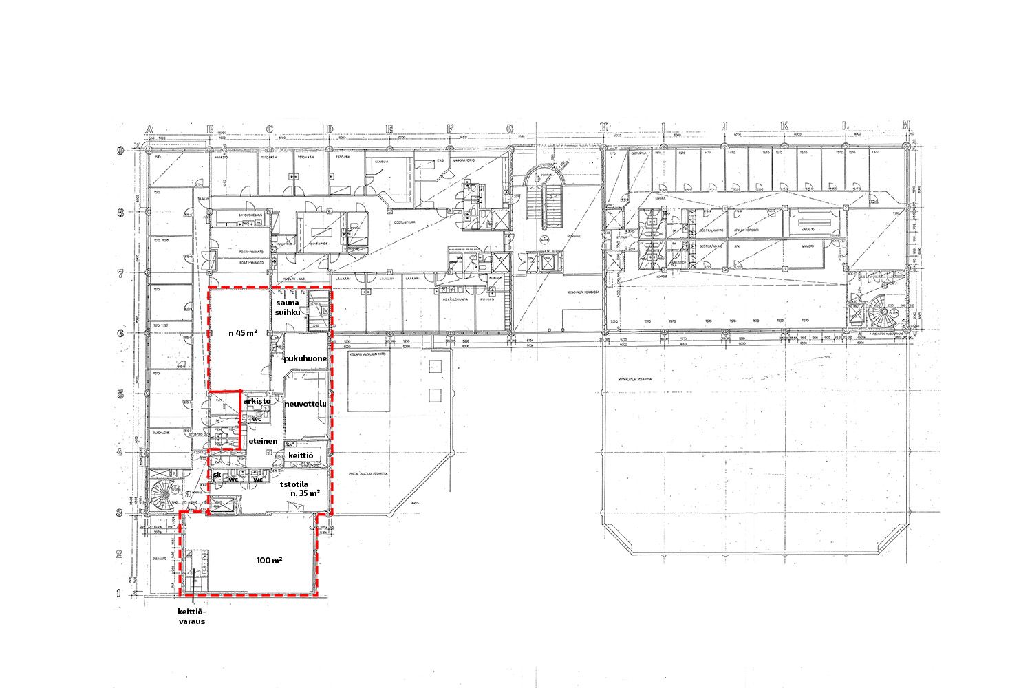
Iso toimistohuoneisto keskeisellä sijainnilla vuokrattavana. Tila soveltuu monenlaisille yrityksille ja on muunneltavissa tarpeiden mukaan. Rauhallinen sijainti toisessa kerroksessa. Ikkunoista näkymät Mannerheiminkadun suuntaan.
Läpitalon huoneistossa on sekä avointa tilaa, että pienempiä tiloja, useampi wc sekä erillinen eteinen/aulatila neuvotteluhuone, suihku- ja saunatilat sekä yksi keittiö. Isoimman avoimen tilan yhteydessä on lisäksi keittiövaraus ja siihen saa tarvittaessa asennettua pienen minikeittiön. Huoneistoon on asennettu valokuitu ja muutama ilmalämpöpumppu. Sisäänkäynti Mannerheiminkadun puoleisesta kulmauksesta. Portaikossa on iso hissi (16 hlö). Samassa talossa mm. Reim-isännöinti, Coronaria, Itä-uudenmaan hyvinvointipalvelut, Tanssiva Porvoo, Fitness24Seven, tilitoimistoja.. liity joukkoon!
Huoneisto mahdollista jakaa kahdelle käyttäjälle (tilaan on useampi sisäänkäynti rappukäytävästä). Mikäli uusi vuokralainen haluaa tilaan pintaremonttia tai muutostöitä on kaikesta sovittava erikseen.
Paikoitusta on niukasti jäljellä parkkihallista, mutta varaustilanne elää ja sitä kannattaa tarvittaessa tiedustella.
Keskustan kaikki palvelut aivan vieressä ja tilaan on esteetön kulku.
Keskeisen sijainnin toimistotila vuokrattavana!
Kohdetiedot
Sijainti
Katuosoite: Mannerheiminkatu 7, 06100 Porvoo
Kaupunginosa: Keskusta
Huoneisto
Pinta-alat: n. 366 m²
Kiinteistötyyppi: Liikerakennus
Tilatyyppi: Toimistotila
Kunto, varusteet ja palvelut: Hyvä kunto, avointa tilaa, neuvottelu/kokoushuone, keittiö ja toinen keittiövaraus, useampi wc ja suihku- ja saunatilat pukuhuoneineen sekä siivouskomero ja arkistointihuone
Kerros: 2/3 (hissi on)
Lämmitys: Kaukolämpö
Paikoitus: Kadulla maksullinen, parkkihallin vapaat paikat tiedusteltavissa
Vapautuu: Heti
Vuokrahinta ja kulut
Kuukausivuokra: 11,90 €/m²/kk + alv
Sähkö- ja vesimaksu: Sähkö ja vesi kulutuksen mukaan
Lämmitys: Sisältyy vuokraan
Muuta: Vakuus 3kk vuokraa vastaava summa, minimisopimus 12kk ja luottotietojen on oltava kunnossa
Läpitalon huoneistossa on sekä avointa tilaa, että pienempiä tiloja, useampi wc sekä erillinen eteinen/aulatila neuvotteluhuone, suihku- ja saunatilat sekä yksi keittiö. Isoimman avoimen tilan yhteydessä on lisäksi keittiövaraus ja siihen saa tarvittaessa asennettua pienen minikeittiön. Huoneistoon on asennettu valokuitu ja muutama ilmalämpöpumppu. Sisäänkäynti Mannerheiminkadun puoleisesta kulmauksesta. Portaikossa on iso hissi (16 hlö). Samassa talossa mm. Reim-isännöinti, Coronaria, Itä-uudenmaan hyvinvointipalvelut, Tanssiva Porvoo, Fitness24Seven, tilitoimistoja.. liity joukkoon!
Huoneisto mahdollista jakaa kahdelle käyttäjälle (tilaan on useampi sisäänkäynti rappukäytävästä). Mikäli uusi vuokralainen haluaa tilaan pintaremonttia tai muutostöitä on kaikesta sovittava erikseen.
Paikoitusta on niukasti jäljellä parkkihallista, mutta varaustilanne elää ja sitä kannattaa tarvittaessa tiedustella.
Keskustan kaikki palvelut aivan vieressä ja tilaan on esteetön kulku.
Keskeisen sijainnin toimistotila vuokrattavana!
Kohdetiedot
Sijainti
Katuosoite: Mannerheiminkatu 7, 06100 Porvoo
Kaupunginosa: Keskusta
Huoneisto
Pinta-alat: n. 366 m²
Kiinteistötyyppi: Liikerakennus
Tilatyyppi: Toimistotila
Kunto, varusteet ja palvelut: Hyvä kunto, avointa tilaa, neuvottelu/kokoushuone, keittiö ja toinen keittiövaraus, useampi wc ja suihku- ja saunatilat pukuhuoneineen sekä siivouskomero ja arkistointihuone
Kerros: 2/3 (hissi on)
Lämmitys: Kaukolämpö
Paikoitus: Kadulla maksullinen, parkkihallin vapaat paikat tiedusteltavissa
Vapautuu: Heti
Vuokrahinta ja kulut
Kuukausivuokra: 11,90 €/m²/kk + alv
Sähkö- ja vesimaksu: Sähkö ja vesi kulutuksen mukaan
Lämmitys: Sisältyy vuokraan
Muuta: Vakuus 3kk vuokraa vastaava summa, minimisopimus 12kk ja luottotietojen on oltava kunnossa
Vapautuu
Heti
Rakennusvuosi
1988
Kerros
2 / 3
Näkyvällä paikalla
Hissi
Ota yhteyttä
Tilat.fi
KTM, LKV Antti Soivio
Näytä puhelinnumero
0400 446 553
OTM, LKV Riikka Tuominen
Näytä puhelinnumero
0400 551 790
KTM, LKV Maria-Sofia Puhakka
Näytä puhelinnumero
0400-150330
MBA, LKV Susanne Wallenius
Näytä puhelinnumero
0400-128877
Yrityksen virallinen nimi: LKV Tilat.fi Oy.
Toimitilojen välitykseen erikoistunut yritys.
Pyydä lisätietoa
