Vuokrataan tuotantotilat - Oulu
Palolankuja 4, Rusko, 90630 Oulu #10860684
Osoite
Palolankuja 4, 90630 Oulu
Tilatyyppi
Tuotantotilaa
599 m2
Vuokra
5300,00 €/kk
Muuta
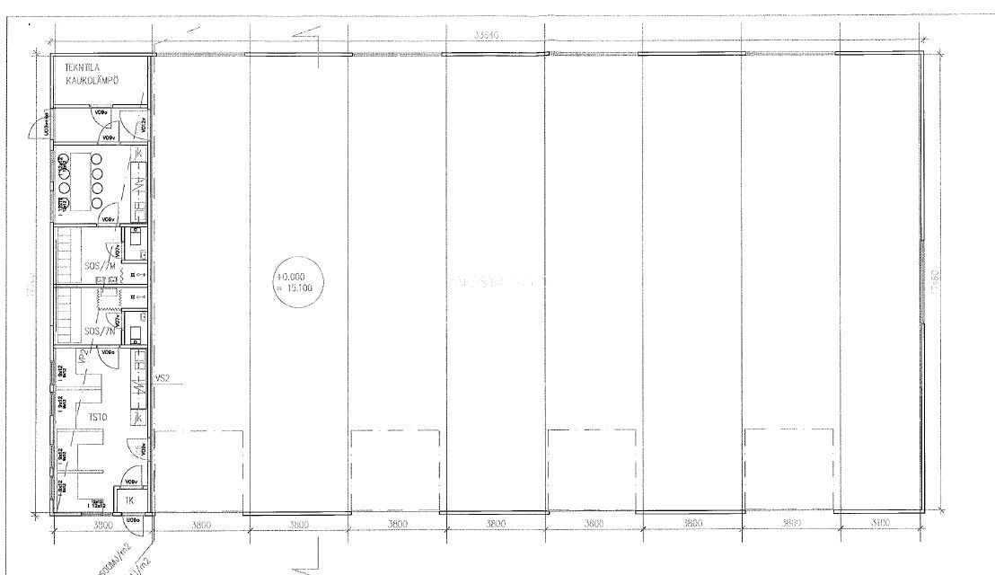
Ruskon Palolankujalta on vapautumassa korkeaa hallitilaa, jonka yhteydessä toimisto- ja sosiaalitilat. Halliin on neljä isoa, sähkötoimista nosto-ovea sekä käyntiovet. Lattia on betonipinnalla, ja lattiakaivoja on useita. Ympäri aidatulla pihalla on reilusti tilaa kalustolle ja tavaran säilytykseen. Piha-alue on pääosin asfaltoitu ja tontille on avattava portti.
Tilan lämmitys on toteutettu maalämmöllä (lämpöpuhaltimet), lisäksi on 2kpl ilmalämpöpumppuja. Toimisto-osassa on sähkölämmitys. Vuokraan kuuluu kiinteistöhuolto ja talvella pihan auraus.
TIlan vuokra on noin 9€/m2 +alv. Vuokralainen vastaa kiinteistön käyttökuluista. Tästä toimivat tilat tilavalla pihalla!
Lisätiedot 040 5400 672 tai joni.romppainen@kiinteistotahkola.fi.
Kysy myös muita vaihtoehtojamme!
Tilan lämmitys on toteutettu maalämmöllä (lämpöpuhaltimet), lisäksi on 2kpl ilmalämpöpumppuja. Toimisto-osassa on sähkölämmitys. Vuokraan kuuluu kiinteistöhuolto ja talvella pihan auraus.
TIlan vuokra on noin 9€/m2 +alv. Vuokralainen vastaa kiinteistön käyttökuluista. Tästä toimivat tilat tilavalla pihalla!
Lisätiedot 040 5400 672 tai joni.romppainen@kiinteistotahkola.fi.
Kysy myös muita vaihtoehtojamme!
Vapautuu
01.09.2026
Rakennusvuosi
2008
Kerros
1
Ota yhteyttä
Kiinteistö-Tahkola Oy
Lumijoentie 1, 90400 Oulu
Näytä puhelinnumero
0207 480 250
Joni Romppainen
Näytä puhelinnumero
0405400672
Pyydä lisätietoa
