Vuokrataan liiketilat - Helsinki
Kaivopiha, 00100 Helsinki #10860681
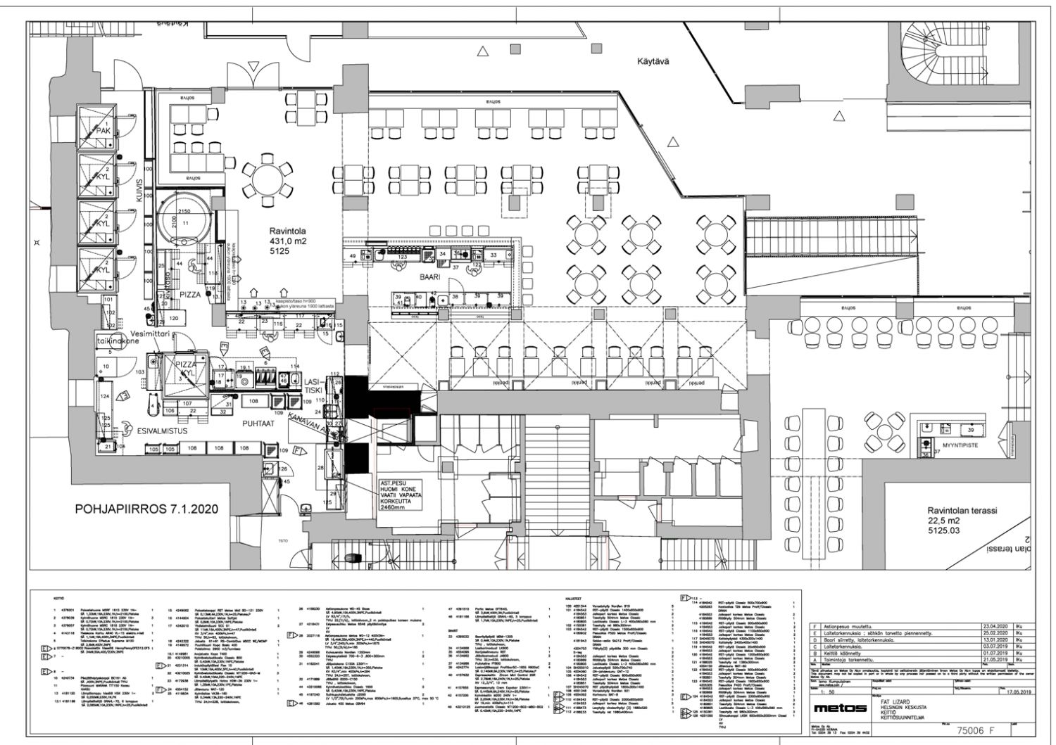
Upea ravintolatila ydinkeskustassa Kaivopihalla, tästä ei sijainti parane! Tilan koko on 431 m2 + 21 m2 varasto. Mahdollisuus myös terassiin kolmen sepän patsaan edustalle. Asiakaspaikkoja on max. 170 hlö.
Liiketilojen vuokraus ja tiedustelut: C&W Retail Services, puh. 0108368400, retail.fi@cushwake.com.
Kaivopiha sijaitsee keskellä Helsingin kaupallista ydinkeskustaa, parhaiden ostospaikkojen keskiössä. Oli kyseessä arkiaamu tai lauantaipäivä, Kaivopihalla riittää kävijöitä.
Kulttuurihistoriallisesti merkittävien ja arkkitehtuurisesti kauniiden Vanhan ja Uuden ylioppilastalon lisäksi Kaivopiha kiinnittyy eteläpuolelta Aleksanterinkatuun avaten reitin Helsingin vilkkaimmalle ostoskadulle.
Vuoden 2020 aikana Kaivopihan alue on kokenut suuren uudistuksen, kun Vanhan ylioppilastalon alapuolella sijaitsevat liiketilat remontoitiin ja alueelle syntyi täysin uusia palveluita huokuttelemaan kaupunkilaisia.
