Vuokrataan toimistotilat, varastotilat - Vantaa
Meiramitie 3, Koivuhaka, 01510 Vantaa #10860680
Laadukasta varasto- (860 m²) ja toimistotilaa (80 m²) Vantaalla Meiramitien varrella.
Osoite
Meiramitie 3, 01510 Vantaa
Tilatyyppi
Toimistotilaa
80 m2
Varastotilaa
860 m2
Yhteensä
940 m2
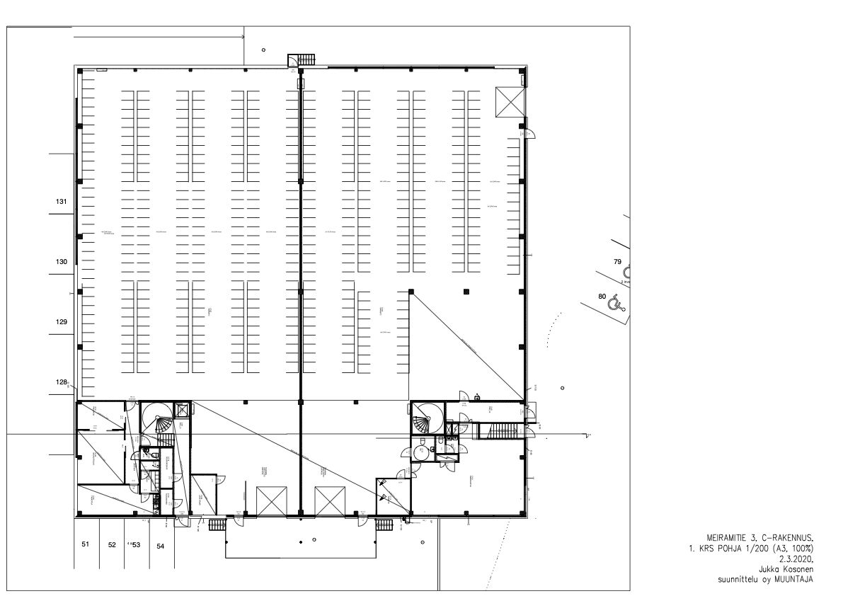
Pohjapiirros
Kiinteistö
Sopimuksen mukaan vapautuva 940 m²:n kokonaisuus C-talon ensimmäisestä kerroksesta.
Varastotilaa on 860 m², josta 740 m² on 8 metriä korkeaa tilaa pistekuormalla 5 t ja tasaisella kuormalla 3 t/m², sekä 120 m² matalampaa 4 metrin tilaa, jossa pistekuorma on 3 t ja tasainen kuorma 10 t/m². Sama kantavuus koskee myös lastauslaituria. Toimistotilaa löytyy 80 m².
Meiramitie 3 vuonna 2009 valmistunut, moderni varastokohde sijaitsee hyvällä paikalla, Tuusulantien ja Helsinki-Vantaan lentokentän läheisyydessä.
Kiinteistön tilat soveltuvat erinomaisesti yrityksille, jotka tarvitsevat sekä varastotilaa että toimistoa.
Meiramitie 3-kiinteistö koostuu 4 erillisestä varastorakennuksesta.
Varastotilaa on 860 m², josta 740 m² on 8 metriä korkeaa tilaa pistekuormalla 5 t ja tasaisella kuormalla 3 t/m², sekä 120 m² matalampaa 4 metrin tilaa, jossa pistekuorma on 3 t ja tasainen kuorma 10 t/m². Sama kantavuus koskee myös lastauslaituria. Toimistotilaa löytyy 80 m².
Meiramitie 3 vuonna 2009 valmistunut, moderni varastokohde sijaitsee hyvällä paikalla, Tuusulantien ja Helsinki-Vantaan lentokentän läheisyydessä.
Kiinteistön tilat soveltuvat erinomaisesti yrityksille, jotka tarvitsevat sekä varastotilaa että toimistoa.
Meiramitie 3-kiinteistö koostuu 4 erillisestä varastorakennuksesta.
Kulkuyhteydet
Bussipysäkki 100 m, Juna-asema 2,3 km, Lentoasema 2,6 km
Vapautuu
30.9.2021 mennessä
Rakennusvuosi
2009
Kerros
1
Energiatehokkuusluokka
D
Näkyvällä paikalla
Lastauslaituri
Ota yhteyttä
ScanReal Oy LKV
Opus Business Park
Hitsaajankatu 24
00810 Helsinki
info@scanreal.fi
Puh:
Näytä puhelinnumero
020 730 8830
Sopivat toimitilat yhdellä otolla!
Kartoitamme toimitilatarpeesi ja etsimme yrityksellesi parhaiten sopivat vapaat toimitilat. Koska vuokranantajat maksavat palvelumme, on tämä yrityksellesi veloituksetonta.
OTA YHTEYTTÄ - SOVI NÄYTTÖ!
Kaikki kohteemme eivät ole netissä, kerro tilatarpeesi niin kartoitamme vaihtoehdot.
Palvelumme on tilanhakijalle ilmainen
Pyydä lisätietoa
