Myydään tuotantotilat - Oulu
Palolankuja 4, Rusko, 90620 Oulu #10860674
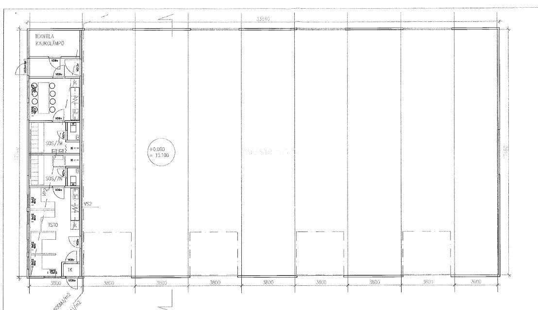
Myydään Ruskosta hallitila tilavalla tontilla!
Tila jakautuu korkeaan hallitilaan, jonka yhteydessä on toimisto-/sosiaalitilat. Halliin on neljä isoa, sähkötoimista nosto-ovea sekä käyntiovet. Lattia on betonipinnalla, ja lattiakaivoja useita. Ympäri aidatulla pihalla on reilusti tilaa kalustolle ja tavaran säilytykseen. Piha-alue on pääosin asfaltoitu ja tontille on avattava portti.
Tilan lämmitys on toteutettu maalämmöllä (lämpöpuhaltimet), lisäksi on 2kpl ilmalämpöpumppuja. Toimisto-osassa on sähkölämmitys.
Tilat vapautuvat käyttöön 1.9.2026 mennessä. Tästä toimivat tilat omaksi reilulla pihatilalla!
Esittelyt ja lisätiedot:
Joni Romppainen
040 5400 672
joni.romppainen@kiinteistotahkola.fi
