Vuokrataan toimistotilat - Lahti
Vapaudenkatu 22, Keskusta, 15140 Lahti #10860659
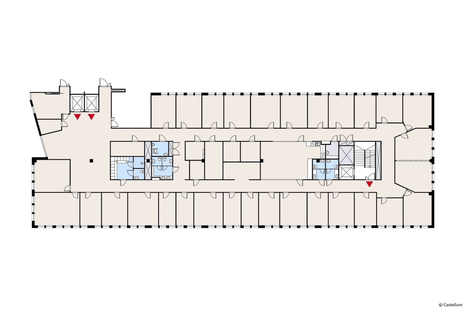
Vuokrataan koko 5. kerroksen käsittävä toimitilakokonaisuus Lahden ydinkeskustassa. Tilaa kiertää eri kokoiset toimistohuoneet ja keskeltä tilaa löytyy keittiöllinen taukoalue sekä wc:t. Kerrokseen on suora hissiyhteys.
Vapaudenkatu 22 on nykyaikainen ja joustava toimistorakennus. Kerrokset voidaan joustavasti jakaa 1 - 4 vuokralaisen kesken. Kiinteistö sijaitsee Lahden liikekeskustan sydämessä, Vesijärvenkadun läheisyydessä, ja sen välittömästä läheisyydestä löytyy runsaasti monipuolisia palveluita, kauppoja, Trio-ostoskeskus ja rautatieasema. Lahden liikekeskustaan pääsee helposti julkisilla kulkuvälineillä, pyörällä ja autolla.
Castellum
Verkkosaarenkatu 5
Näytä puhelinnumero
040 027 3614
Johanna Hovi
Näytä puhelinnumero
044 090 3841
