Vuokrataan - Helsinki
Sturenkatu 2-4, Alppiharju, 00510 Helsinki #10860642
Osoite
Sturenkatu 2-4, 00510 Helsinki
Muuta
Tarjolla vuokrattavaksi monipuolisia toimitiloja arvostetusta Helsingin Kulttuuritalo-kiinteistöstä erinomaisten kulkuyhteyksien varrelta.
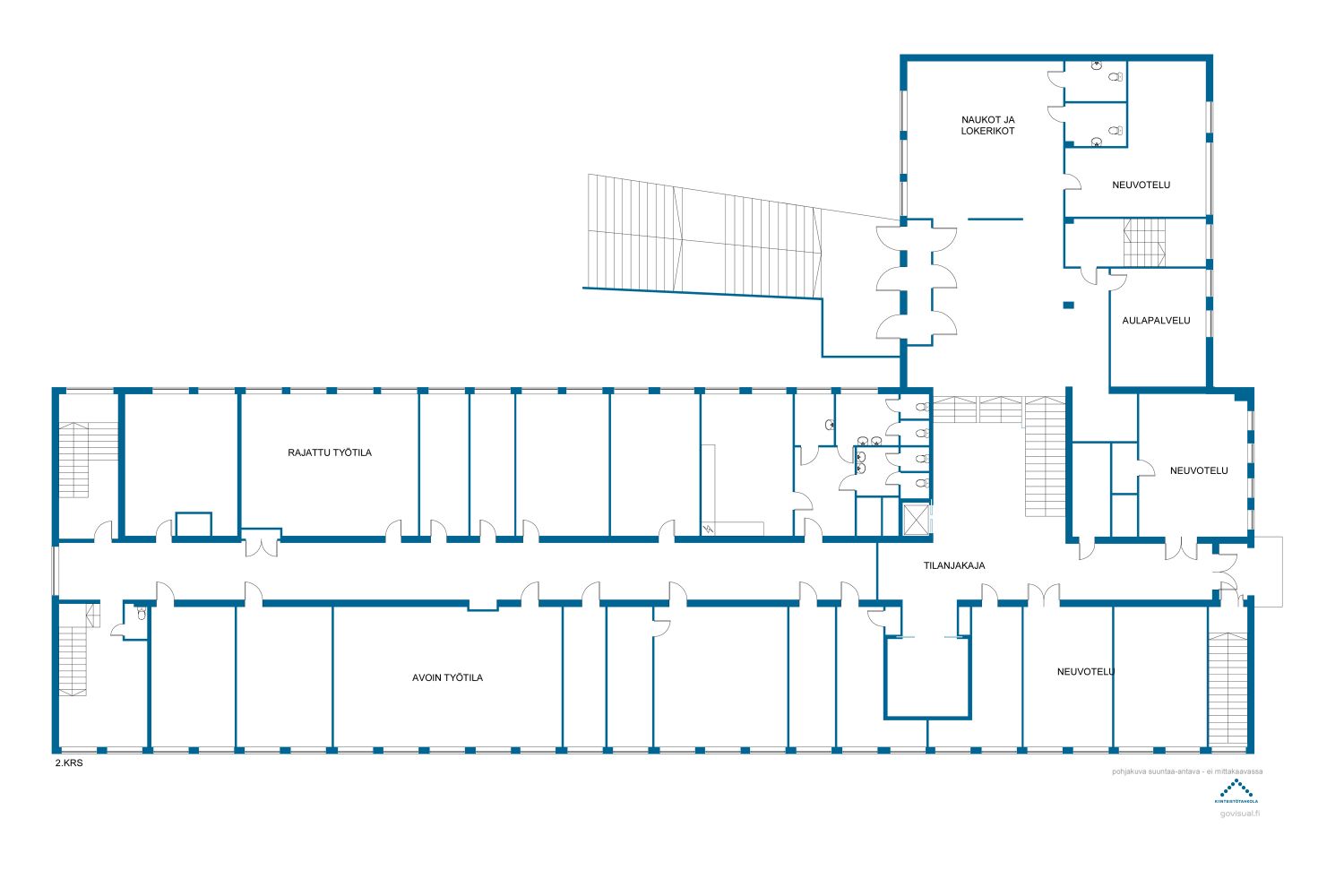
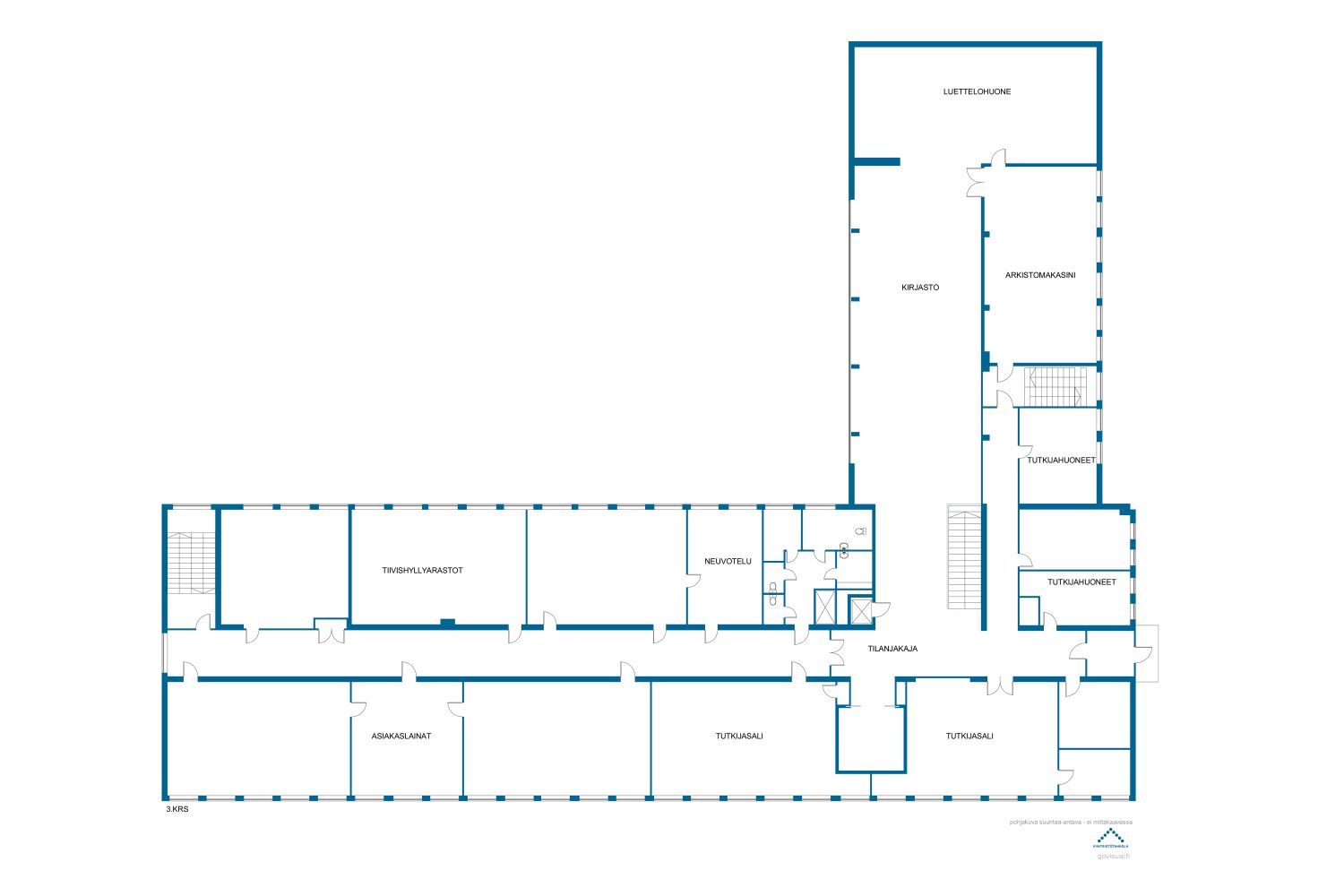
Kohteessa on erikokoisia tiloja moneen tarpeeseen – toimistokäyttöön soveltuvaa liiketilaa 20 m² tiloista aina yli 1000 m² kokonaisuuksiin. Lisäksi tarjolla on korkean turvaluokituksen arkistotilaa, joka soveltuu myös suurten aineistomäärien säilytykseen.
Kiinteistössä toimivat laajat palvelut, kuten oma ravintola, sekä monipuoliset tilat kokouksiin, koulutuksiin ja tapahtumiin.
Ole yhteydessä valtteri.mauno@kiinteistotahkola.fi tai 040 3500442
Kohteessa on erikokoisia tiloja moneen tarpeeseen – toimistokäyttöön soveltuvaa liiketilaa 20 m² tiloista aina yli 1000 m² kokonaisuuksiin. Lisäksi tarjolla on korkean turvaluokituksen arkistotilaa, joka soveltuu myös suurten aineistomäärien säilytykseen.
Kiinteistössä toimivat laajat palvelut, kuten oma ravintola, sekä monipuoliset tilat kokouksiin, koulutuksiin ja tapahtumiin.
Ole yhteydessä valtteri.mauno@kiinteistotahkola.fi tai 040 3500442
Vapautuu
Heti vapaa
Rakennusvuosi
1958
Kerros
2
Energiatehokkuusluokka
A2018
Ota yhteyttä
Kiinteistö-Tahkola Oy
Itälahdenkatu 15-17, 2krs, 00210 Helsinki
Näytä puhelinnumero
0207 480 294
Kiinteistötahkola Helsinki
Näytä puhelinnumero
0401580999
Pyydä lisätietoa
