Vuokrataan toimistotilat - Oulu
Tetriläntie 8 A 4, Oulunsalo, 90460 Oulu #10860640
Osoite
Tetriläntie 8 A 4, 90460 Oulu
Tilatyyppi
Toimistotilaa
155 m2
Vuokra
1650,00 €/kk
Muuta
Vuokrataan huippusijainnilta Oulunsalosta hyvätasoista halli- ja toimistotilaa!
Halli sijaitsee hyvällä paikalla vilkasliikenteisen Lentokentäntien varrella.
Tältä alueelta on todella hyvät liikenneyhteydet lentokentän, Hailuodon, Kempeleen sekä kaupungin että moottoritien suuntaan, joten tänne on helppo kulkea isommallakin kulkupelillä! Halli on kierrettävissä, joten tavarakuljetukset onnistuu loistavasti.
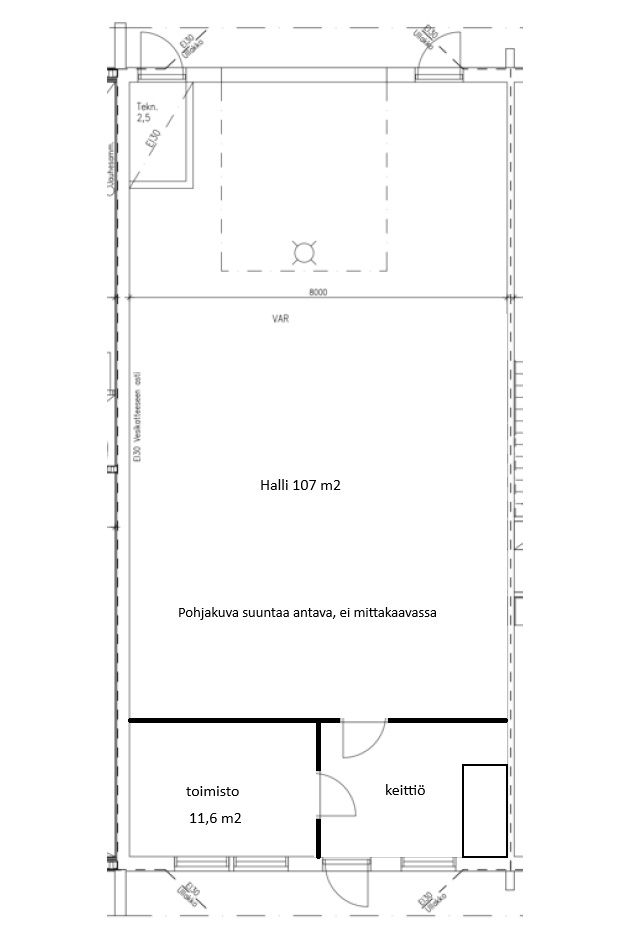
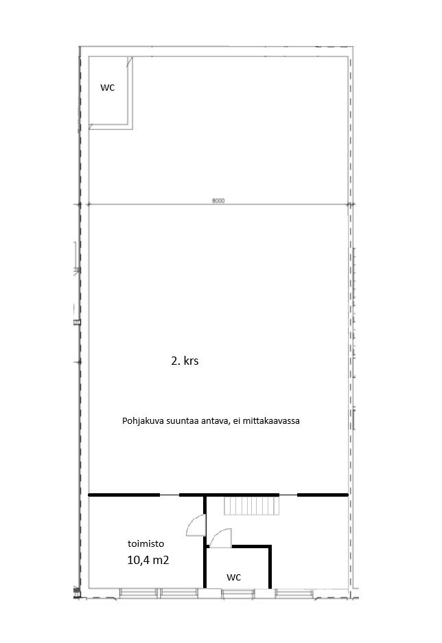
Tilat koostuu n. 5 metriä korkeasta hallitilasta, leveys/pituus n. 8 x 13 m (nosto-ovelta toimiston seinään) ja hallin perällä olevasta toimistotilasta. Toimistopuolella katutasossa on minikeittiö ja toimistohuone, toisessa kerroksessa on aulatila, wc suihkukaapilla ja tilan toinen toimisto. Toinen wc löytyy hallin puolelta. Nosto-ovi on 3,5 x 4 metriä.
Halliin on käynti sisäpihan puolella, jossa nosto-ovi ja erillinen käyntiovi, lisäksi toimistotiloihin on erillinen käynti myös talon toiselta puolelta.
Tilat ovat erittäin toimivat sekä hallin että toimiston/sosiaalitilojen osalta. Hallissa mm. kestävät lattiapinnoitteet, kaivo öljyn-/hiekanerotuksella, toimiston puolella tarvittava kalustus sekä toimistokeittiössä että wc-suihkutilassa.
Tilat ovat sähkölämmitteiset, lisäksi on koneellinen ilmanvaihto lämmön talteenotolla.
Autoilla pysäköintimahdollisuus hallin piha-alueella.
Vuokra 1650,00 €/kk + alv.
Erilliskorvauksena vuokralainen vastaa vedestä kulutuksen mukaan ja tekee oman sähkösopimuksen.
Tila on vapaa 1.6.2026!
Esittelyt ja lisätietoja:
Sami Kortesoja
045 896 4803
sami.kortesoja@kiinteistotahkola.fi
Eikö tämä ole sopiva? Kysy muita vaihtoehtojamme!
Halli sijaitsee hyvällä paikalla vilkasliikenteisen Lentokentäntien varrella.
Tältä alueelta on todella hyvät liikenneyhteydet lentokentän, Hailuodon, Kempeleen sekä kaupungin että moottoritien suuntaan, joten tänne on helppo kulkea isommallakin kulkupelillä! Halli on kierrettävissä, joten tavarakuljetukset onnistuu loistavasti.
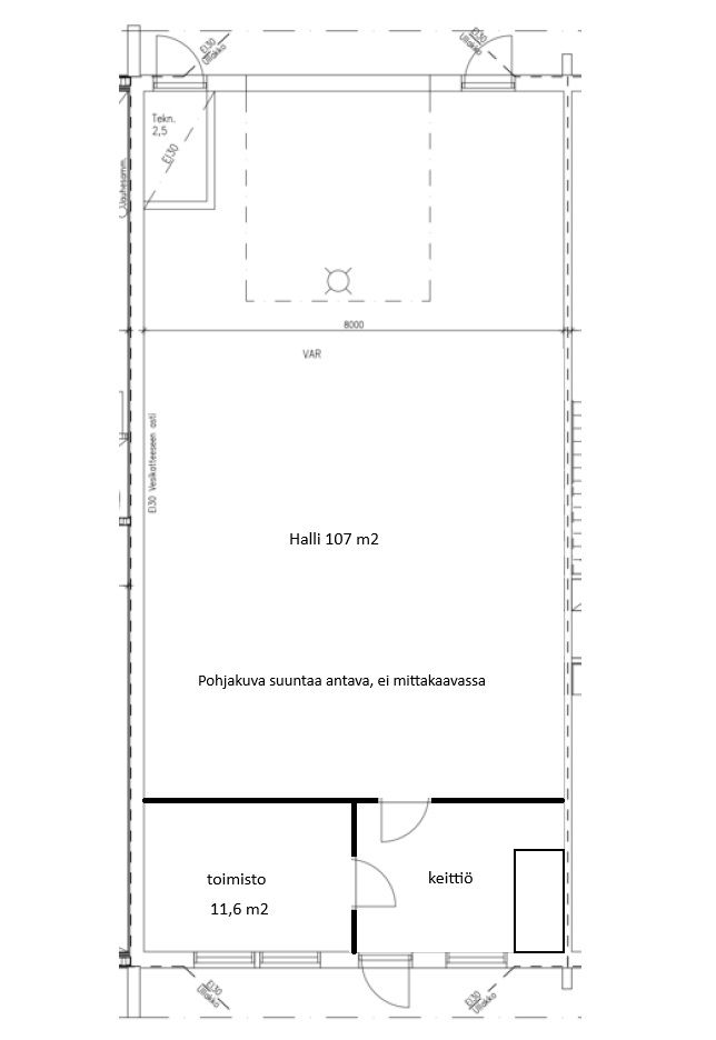
Tilat koostuu n. 5 metriä korkeasta hallitilasta, leveys/pituus n. 8 x 13 m (nosto-ovelta toimiston seinään) ja hallin perällä olevasta toimistotilasta. Toimistopuolella katutasossa on minikeittiö ja toimistohuone, toisessa kerroksessa on aulatila, wc suihkukaapilla ja tilan toinen toimisto. Toinen wc löytyy hallin puolelta. Nosto-ovi on 3,5 x 4 metriä.
Halliin on käynti sisäpihan puolella, jossa nosto-ovi ja erillinen käyntiovi, lisäksi toimistotiloihin on erillinen käynti myös talon toiselta puolelta.
Tilat ovat erittäin toimivat sekä hallin että toimiston/sosiaalitilojen osalta. Hallissa mm. kestävät lattiapinnoitteet, kaivo öljyn-/hiekanerotuksella, toimiston puolella tarvittava kalustus sekä toimistokeittiössä että wc-suihkutilassa.
Tilat ovat sähkölämmitteiset, lisäksi on koneellinen ilmanvaihto lämmön talteenotolla.
Autoilla pysäköintimahdollisuus hallin piha-alueella.
Vuokra 1650,00 €/kk + alv.
Erilliskorvauksena vuokralainen vastaa vedestä kulutuksen mukaan ja tekee oman sähkösopimuksen.
Tila on vapaa 1.6.2026!
Esittelyt ja lisätietoja:
Sami Kortesoja
045 896 4803
sami.kortesoja@kiinteistotahkola.fi
Eikö tämä ole sopiva? Kysy muita vaihtoehtojamme!
Vapautuu
01.06.2026
Kerros
1
Ota yhteyttä
Kiinteistö-Tahkola Oy
Lumijoentie 1, 90400 Oulu
Näytä puhelinnumero
0207 480 250
Sami Kortesoja
Näytä puhelinnumero
045 896 4803
Pyydä lisätietoa
