Vuokrataan toimistotilat - Helsinki
Tallberginkatu 2, Ruoholahti, 00180 Helsinki #10860584
Toimistotilaa loistavalla sijainnilla Helsingin Ruoholahdessa.
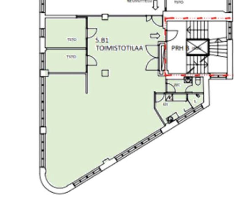
Tämä 136 m² päätytila sijaitsee kiinteistön 5. kerroksessa. Toimistossa on avotilaa, muutama huone sekä omat keittiö- ja wc-tilat.
Tallberginkatu 2 eli Tallbergintalo sijaitsee Ruoholahdessa Tallberginkadun ja Porkkalankadun risteyksessä. Tallbergintalo on yhdistetty Itämerentalon kanssa. Rakennuksilla on yhteiset neuvottelutilat, lounasravintola, lastauslaituri sekä sisäyhteys talojen välillä. Kiinteistö sijaitsee erinomaisten liikenneyhteyksien varrella. Pysäköintipaikkoja voi vuokrata Ruoholahden pysäköintihallista.
Kysy lisää numerosta 044 723 4700 tai info@bref.fi. Palvelumme on tilanhakijoille ilmainen.
Hissi
Bureau Real Estate Finland Oy
Lars Sonckin kaari 16, 02600 Espoo
Näytä puhelinnumero
0447234700
Bureau Real Estate Finland Oy
https://www.bref.fi