Vuokrataan toimistotilat - Helsinki
Porkkalankatu 7, Ruoholahti, 00180 Helsinki #10860580
Vuokrattavana toimistotilaa Ruoholahdessa.
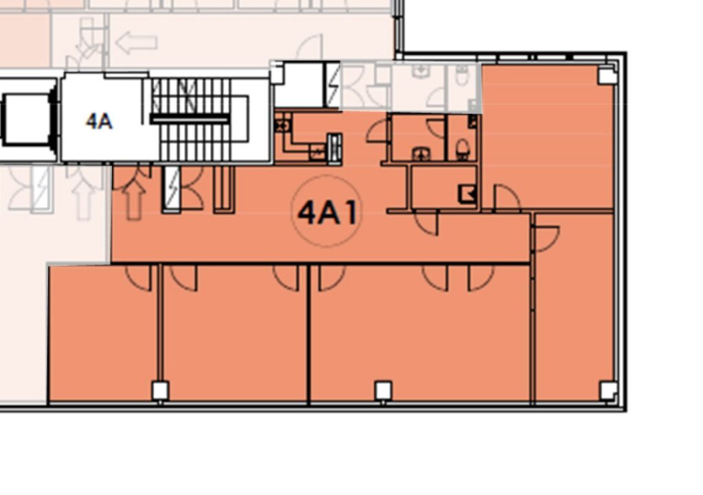
Tämä 157,5 m² toimisto sijaitsee kiinteistön 4. kerroksessa. Toimistossa on 5 huonetta sekä oma wc-tila ja keittiöpiste. Vapautuminen 1.9.2026.
Porkkalankatu 7 on toimisto- ja liikekiinteistö, joka sijaitsee hyvällä paikalla Ruoholahdessa. Sen tilat on joustavasti muokattavissa uuden vuokralaisen tarpeita vastaavaksi. Kiinteistö on helposti saavutettavissa sekä omalla autolla että julkisella liikenteellä. Lähellä on Ruoholahden kauppakeskuksen monipuoliset palvelut. Metroasemalle on lyhyt kävelymatka.
Kysy lisää numerosta 044 723 4700 tai info@bref.fi. Palvelumme on tilanhakijoille ilmainen.
Hissi
Bureau Real Estate Finland Oy
Lars Sonckin kaari 16, 02600 Espoo
Näytä puhelinnumero
0447234700
Bureau Real Estate Finland Oy
https://www.bref.fi