Vuokrataan toimistotilat - Helsinki
Elimäenkatu 17-19, Vallila, 00510 Helsinki #10860578
Vuokrattavana siistiä toimistotilaa Vallilassa, modernissa toimistokiinteistössä.
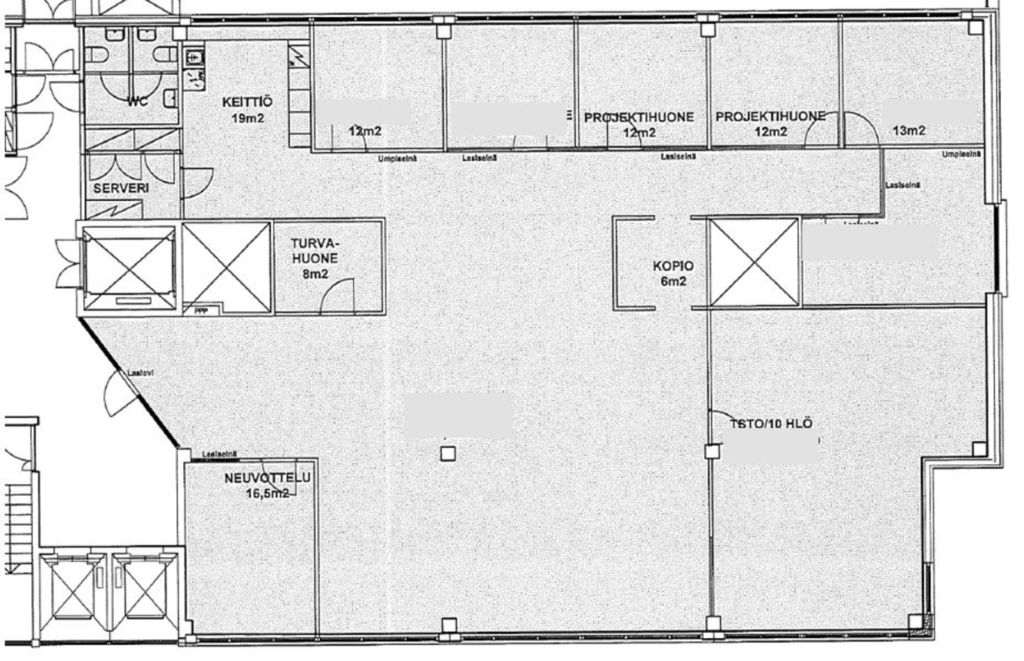
Tämä 362 m² toimistotila sijaitsee kiinteistön 3. kerroksessa. Toimistossa on huoneita, avotilaa sekä omat keittiö- ja wc-tilat.
Elimäenkatu 17-19 eli Vallilan VALLI on moderni toimistokiinteistö hyvien liikenneyhteyksien varrella Helsingin Vallilassa. Se on rakennettu vuonna 1999. Kiinteistön tilat ovat muuttovalmiiita, mutta niitä on mahdollista muokata ja remontoida yrityksen tarpeiden mukaan. Kiinteistössä on myös hyvät palvelut ja runsaasti pysäköintitilaa.
Kysy lisää numerosta 044 723 4700 tai info@bref.fi. Palvelumme on tilanhakijoille ilmainen.
Bureau Real Estate Finland Oy
Lars Sonckin kaari 16, 02600 Espoo
Näytä puhelinnumero
0447234700
Bureau Real Estate Finland Oy
https://www.bref.fi