Vuokrataan toimistotilat - Helsinki
Unioninkatu 24, Kaartinkaupunki, 00130 Helsinki #10860554
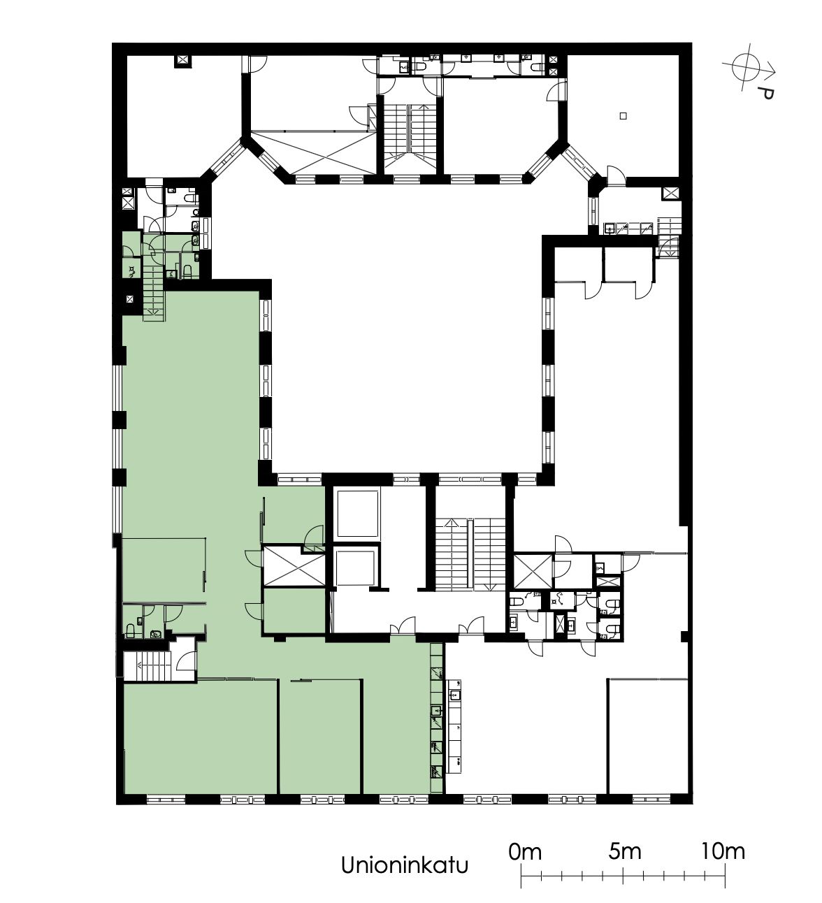
3. kerroksen siisti hybriditoimisto, jossa sekä avotoimistoa että toimistohuoneita. Sijainti lähellä Kauppatoria ja näkymät Unioninkadulle.
Osoite
Unioninkatu 24, 00130 Helsinki
Tilatyyppi
Toimistotilaa
256 m2
Pohjapiirros
Kiinteistö
1920-luvun talokaunottaren toimisto- ja liiketilat ovat viihtyisät ja hyvin muunneltavissa käyttäjän tarpeiden mukaan.
Kauppatori ja Esplanadin puisto ovat nurkan takana. Näyttävä julkisivu ja porraskäytävä toivottavat vieraat tervetulleiksi.
Vastapäätä arvokiinteistöä sijaitsee tasokas hotelli. Lähellä ovat paitsi merenranta, Vanha kauppahalli ja vaativaankin makuun sopivat ravintolat myös Kasarmitorin iso ruokakauppa ja muut palvelut. Lisäksi Tapahtumatalo Bank palveluineen löytyy samaisen kadun varrelta.
Kiinteistö sijaitsee Kaartinkaupungin bisneskeskustan ytimessä. Kaartinkaupunki on uuden ja vanhan viehättävä sekoitus. Keskellä Helsinkiä, mutta omassa rauhassaan.
Kiinteistölle on myönnetty BREEAM In-Use Excellent -tason ympäristösertifikaatti. BREEAM (Building Research Establishment Environmental Assessment Method) on kansainvälinen rakennusten ympäristöluokitusjärjestelmä, joka tähtää rakennuksen käytön ympäristövaikutusten vähentämiseen sekä terveellisempien työympäristöjen kehittämiseen.
Kauppatori ja Esplanadin puisto ovat nurkan takana. Näyttävä julkisivu ja porraskäytävä toivottavat vieraat tervetulleiksi.
Vastapäätä arvokiinteistöä sijaitsee tasokas hotelli. Lähellä ovat paitsi merenranta, Vanha kauppahalli ja vaativaankin makuun sopivat ravintolat myös Kasarmitorin iso ruokakauppa ja muut palvelut. Lisäksi Tapahtumatalo Bank palveluineen löytyy samaisen kadun varrelta.
Kiinteistö sijaitsee Kaartinkaupungin bisneskeskustan ytimessä. Kaartinkaupunki on uuden ja vanhan viehättävä sekoitus. Keskellä Helsinkiä, mutta omassa rauhassaan.
Kiinteistölle on myönnetty BREEAM In-Use Excellent -tason ympäristösertifikaatti. BREEAM (Building Research Establishment Environmental Assessment Method) on kansainvälinen rakennusten ympäristöluokitusjärjestelmä, joka tähtää rakennuksen käytön ympäristövaikutusten vähentämiseen sekä terveellisempien työympäristöjen kehittämiseen.
Sijainti
Unioninkatu sijaitsee Kauppatorin, Esplanadin sekä Kasarmitorin välittömässä läheisyydessä. Kulkuyhteydet ovat loistavat, sillä rautatie- ja Helsingin yliopiston metroasemalle on 800 metriä ja raitiovaunut kulkevat aivan läheltä.
Pysäköinti
Q-Park Kasarmitori ja Erottaja
Palvelut
Alueella on ravintoloita, hotelleja sekä neuvottelukeskuksia. Kauppahalli ja kauppatori ovat myös aivan kohteen lähellä.
Kulkuyhteydet
Lähimmälle bussipysäkille 150 m
Lähimmälle juna-asemalle 1 km
Lähimmälle metroasemalle 800 m
Lähimmälle raitiovaunupysäkille 100 m
Lentokentälle 25 min
Lähimmälle juna-asemalle 1 km
Lähimmälle metroasemalle 800 m
Lähimmälle raitiovaunupysäkille 100 m
Lentokentälle 25 min
Vapautuu
Kysy
Rakennusvuosi
1920
Kerros
3
Energiatehokkuusluokka
C2018
Ympäristöluokitus
BREEAM In-Use Excellent,GRESB Global Sector Leader 2025
Liitetiedostot
Ota yhteyttä
Sponda Oy
Yrjönkatu 29C, 00100 Helsinki
Näytä puhelinnumero
020 43131
Magnus Öster
Director, Leasing
Näytä puhelinnumero
+358 40 768 4926
Sponda Oy
https://www.sponda.fiPyydä lisätietoa
