Vuokrataan toimistotilat, varastotilat - Vantaa
Meiramitie 3, Koivuhaka, 01300 Vantaa #10860537
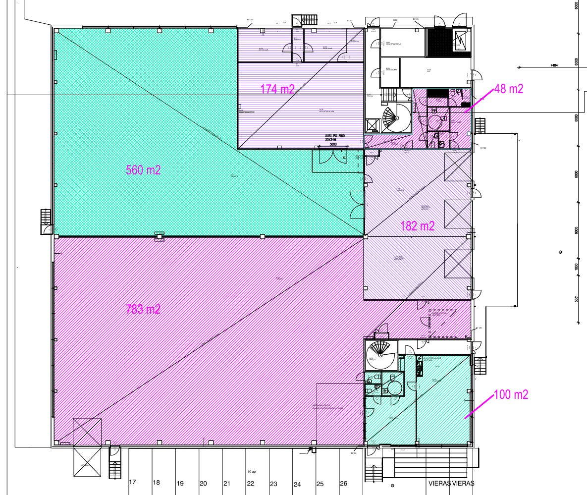
Siistikuntoista modernin aikakauden varastotilaa 560 m2 ja ensimmäisen kerroksen toimistolla 174 m2 ja/tai 2. kerroksen toimisto 463 m2 (jaettavissa 234 m2/229 m2) hyvien kulkuyhteyksien varrella H:ki-Vantaan lentokentän läheisyydessä. Tilaan on suora yhteys lastauslaiturin yhteiseltä lastausalueelta, josta osuus 91 m2. Varaston vapaa korkeus 8 metriä, lattian kantavuus 5000 kg/m2 pistekuorma, 3000 kg/m2 tasainen kuorma.
Ota yhteyttä ja sovi esittely, vuokrauspalvelumme on tilanhakijalle maksuton.
Osoite
Meiramitie 3, 01300 Vantaa
Tilatyyppi
Toimistotilaa
174 - 463 m2
Varastotilaa
873 m2
Yhteensä
873 - 1336 m2
Pohjapiirros
Kiinteistö
Lattian kantavuus; korkea osa pistekuorma 5 t ja tasainen kuorma 3 t, matala osa ja lastauslaituri pistekuorma 3 t ja tasainen kuorma 10 t.
Sijainti
Koivuhaan teollisuusalue.
Ympäristö
Logistiikka - teollisuus
Pysäköinti
Pihalla hyvin parkkitilaa.
Kulkuyhteydet
Kehä III ja Tuusulantie lähellä, myös HSL-bussiyhteys.
Vapautuu
Heti
Energiatehokkuusluokka
Ei lain edellyttämää energiatodistusta
Ota yhteyttä
Senaatin Notariaatti Oy LKV
Lämmittäjänkatu 4 A
FIN-00880 Helsinki
Tel:
Näytä puhelinnumero
+358 9 7745 100
Pyydä lisätietoa
