Vuokrataan tuotantotilat, varastotilat - Nokia
Knuutilankatu 8, Kaleva, 37200 Nokia #10860530
Halli- ja varastotilaa Nokialta
Osoite
Knuutilankatu 8, 37200 Nokia
Tilatyyppi
Tuotantotilaa
233 - 514 m2
Varastotilaa
233 - 514 m2
Yhteensä
233 - 514 m2
Muuta
Vuokrattavana halli-/varastotilaa Nokialta osoitteessa Knuutilankatu 8. Kohteessa on iso piha-alue sekä kaksi erillistä hallia, jotka voidaan vuokrata yhdessä tai erikseen. Kokonaisuus soveltuu varastointiin, tuotantoon ja muuhun yritystoimintaan käyttötarpeen mukaan.
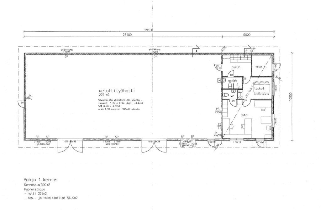
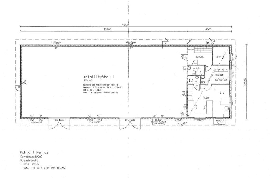
Toinen halli on kokonaisuudessaan 281 m². Halliosa on 225 m² ja lisäksi tilan yhteydessä on 56 m² toimisto- ja sosiaalitilat. Halliosassa on nosto-ovet, mikä tukee tavaran käsittelyä ja tilan käyttöä varasto- tai tuotantotarkoituksessa.
Toinen hallirakennus on yhteensä 233 m² ja se on tällä hetkellä jaettu kahteen erilliseen osaan. Mikäli hallit vuokrataan erillisinä kokonaisuuksina, tähän yhteyteen rakennetaan omat sosiaalitilat.
Tervetuloa tutustumaan, varaathan välittäjältä oman esittelyaikasi. Voit kysyä meiltä myös muita sopivia vaihtoehtoja, kauttamme löydät juuri Teidän tarpeisiinne sopivat tilat. Palvelumme on tilanhakijalle veloitukseton!
Toinen halli on kokonaisuudessaan 281 m². Halliosa on 225 m² ja lisäksi tilan yhteydessä on 56 m² toimisto- ja sosiaalitilat. Halliosassa on nosto-ovet, mikä tukee tavaran käsittelyä ja tilan käyttöä varasto- tai tuotantotarkoituksessa.
Toinen hallirakennus on yhteensä 233 m² ja se on tällä hetkellä jaettu kahteen erilliseen osaan. Mikäli hallit vuokrataan erillisinä kokonaisuuksina, tähän yhteyteen rakennetaan omat sosiaalitilat.
Tervetuloa tutustumaan, varaathan välittäjältä oman esittelyaikasi. Voit kysyä meiltä myös muita sopivia vaihtoehtoja, kauttamme löydät juuri Teidän tarpeisiinne sopivat tilat. Palvelumme on tilanhakijalle veloitukseton!
Vapautuu
Kysy
Kerros
1
Ota yhteyttä
Tuloskiinteistöt Oy
Finlaysoninkatu 4, 33210 Tampere
Näytä puhelinnumero
050 502 4639
Sanna Eerilä-Vänni
Director, Partner
Näytä puhelinnumero
+358 50 5024639
Tara Särkinen
Commercial Real Estate Advisor
Näytä puhelinnumero
+358443187720
Pyydä lisätietoa
