Vuokrataan liiketilat - Tampere
Lindforsinkatu 4, Hervanta, 33720 Tampere #10860527
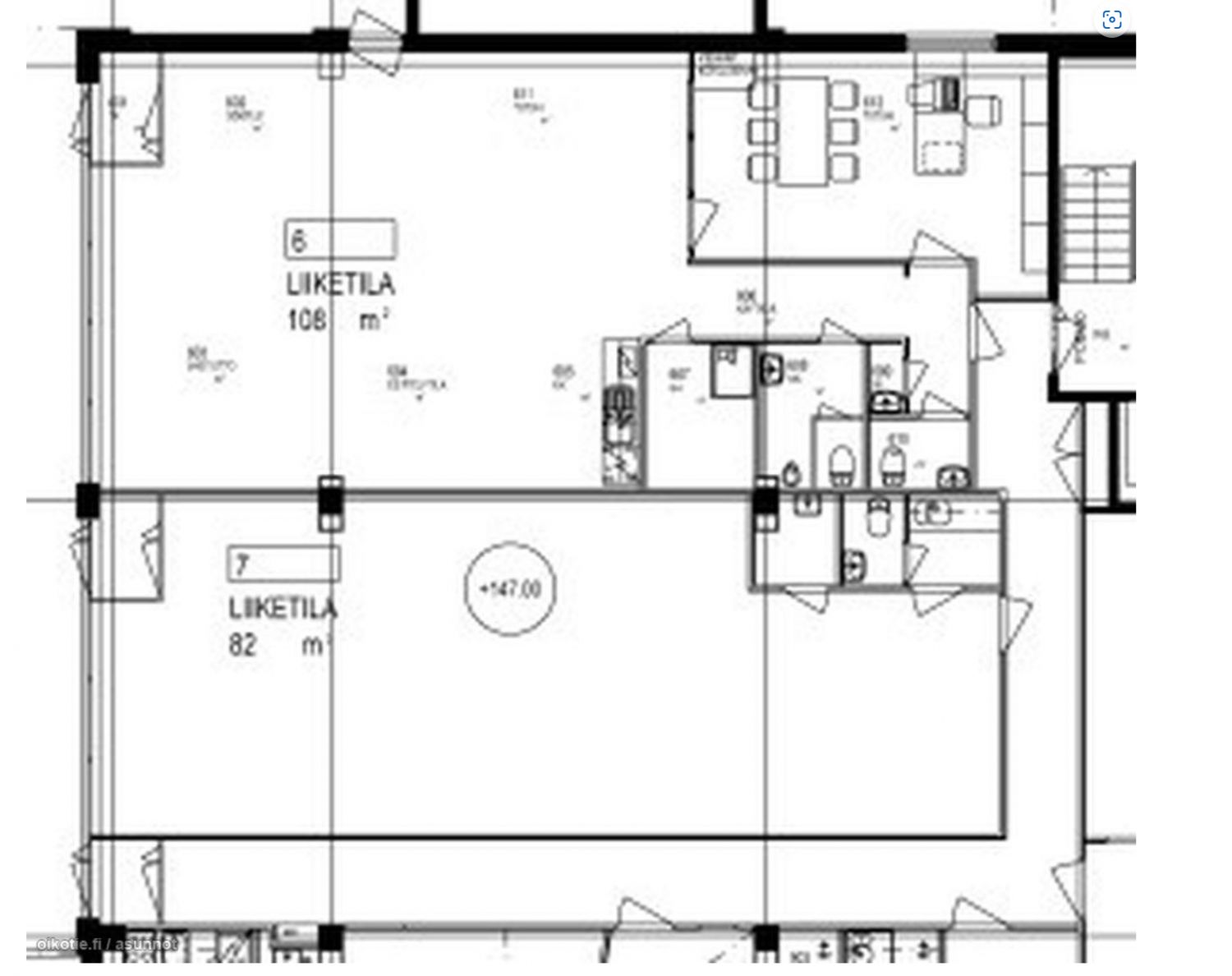
Liiketila 108m2 ja 82m2
Osoite
Lindforsinkatu 4, 33720 Tampere
Tilatyyppi
Liiketilaa
82 - 190 m2
Kiinteistö
Hervannan keskustassa kaksi liiketilaa, jotka vuokrattavissa erikseen tai yhdistettävissä toisiinsa käyttäjän tarpeiden mukaan.
Tila 108m2 sisältää keittiön, 2 x wc ja toimistohuoneen.
Tila 82m2 sisältää 2 x wc.
Tilat soveltuvat monenlaiseen liiketoimintaan ja erilaisiin käyttötarkoituksiin.
Tilat sijaitsevat lähellä Duo kauppakeskusta.
Tila 108m2 sisältää keittiön, 2 x wc ja toimistohuoneen.
Tila 82m2 sisältää 2 x wc.
Tilat soveltuvat monenlaiseen liiketoimintaan ja erilaisiin käyttötarkoituksiin.
Tilat sijaitsevat lähellä Duo kauppakeskusta.
Vapautuu
Kysy
Kerros
1
Ota yhteyttä
Logistila Oy
Kalevan puistotie 22 LT 4, 33500 Tampere
Jukka Nukari
Näytä puhelinnumero
0440759789
Pyydä lisätietoa
