Vuokrataan toimistotilat - Tampere
Kelloportinkatu 1, Tampella, 33100 Tampere #10860504
Siistiä toimistotilaa Tampereelta
Osoite
Kelloportinkatu 1, 33100 Tampere
Tilatyyppi
Toimistotilaa
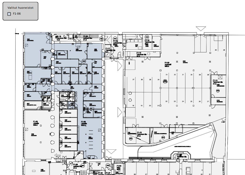
632 m2
Muuta
Vuokrattavana 632 m² siistiä toimistotilaa Tampereen Tampellasta.
Tila sijaitsee rakennuksen 1. kerroksessa ja vapautuu 1.2.2027 alkaen.
Toimistokokonaisuus on laadukas ja tarjoaa toimivat puitteet. Tila soveltuu hyvin eri toimialojen tarpeisiin ja mahdollistaa tehokkaan työskentelyn.
Kohteella on erinomainen sijainti lähellä keskustan palveluita ja liikenneyhteyksiä. Uniikki kokonaisuus yhdistää modernit toimitilat ja historiallisen ympäristön erityisellä tavalla.
Tila soveltuu myös terveydenhuoltoalan toimijalle. Tilassa on aiemmin toiminut terveysalan yritys, joten huoneista löytyy hyvin valmiina vesipisteitä.
Kiinteistö saneerattu täysin vuonna 2017.
Tervetuloa tutustumaan, varaathan välittäjältä oman esittelyaikasi. Voit kysyä meiltä myös muita sopivia vaihtoehtoja, kauttamme löydät juuri Teidän tarpeisiinne sopivat tilat. Palvelumme on tilanhakijalle veloitukseton!
Tila sijaitsee rakennuksen 1. kerroksessa ja vapautuu 1.2.2027 alkaen.
Toimistokokonaisuus on laadukas ja tarjoaa toimivat puitteet. Tila soveltuu hyvin eri toimialojen tarpeisiin ja mahdollistaa tehokkaan työskentelyn.
Kohteella on erinomainen sijainti lähellä keskustan palveluita ja liikenneyhteyksiä. Uniikki kokonaisuus yhdistää modernit toimitilat ja historiallisen ympäristön erityisellä tavalla.
Tila soveltuu myös terveydenhuoltoalan toimijalle. Tilassa on aiemmin toiminut terveysalan yritys, joten huoneista löytyy hyvin valmiina vesipisteitä.
Kiinteistö saneerattu täysin vuonna 2017.
Tervetuloa tutustumaan, varaathan välittäjältä oman esittelyaikasi. Voit kysyä meiltä myös muita sopivia vaihtoehtoja, kauttamme löydät juuri Teidän tarpeisiinne sopivat tilat. Palvelumme on tilanhakijalle veloitukseton!
Vapautuu
Kysy
Kerros
1
Ota yhteyttä
Tuloskiinteistöt Oy
Finlaysoninkatu 4, 33210 Tampere
Näytä puhelinnumero
050 502 4639
Sanna Eerilä-Vänni
Director, Partner
Näytä puhelinnumero
+358 50 5024639
Tara Särkinen
Commercial Real Estate Advisor
Näytä puhelinnumero
+358443187720
Pyydä lisätietoa
