Vuokrataan toimistotilat - Espoo
Tarvonsalmenkatu 17, Perkkaa, 02600 Espoo #10860500
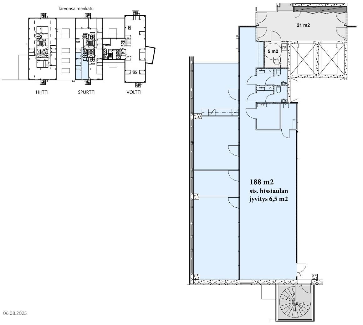
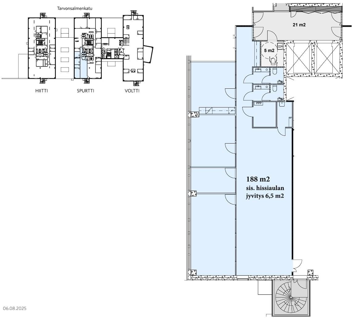
Vuokrataan neljännen kerroksen 188 m² toimistotila Derby Business Parkista Espoosta. Tämä tila on tehokas ja moderni toimistotila, jossa on erillisiä työhuoneita sekä avotilaa.
Derby Business Park tarjoaa joustavat toimistotilat luonnon helmassa, joissa päivänvalon runsaus sekä rauhoittavat merinäkymät tekevät työpäivistä entistäkin miellyttävämpiä.
Kävely- ja pyörätiet yhdistävät alueen puistot sekä liikunta- ja leikkipaikat Vermonniitty ympäristöineen tarjoaa täydelliset mahdollisuudet aktiiviseen työaikaan kävely- ja pyöräteiden yhdistäessä alueen puistot ja liikuntapaikat. Täällä pääset nauttimaan erinomaisista palveluista, kuten suositusta ravintolasta, sauna- ja kokoontumistiloista sekä autopesusta. Merellisestä miljööstä on hyvät yhteydet palveluiden äärelle.
Autolla on nopea saavutettavuus niin Kehä I:ltä, Turunväylältä kuin Helsingin keskustastakin.
KEHÄ III - 12 km / 11 min
TAPIOLA - 6.5 km / 12 min
LÄNSIVÄYLÄ - 7 km / 11 min
KAMPPI - 9 km / 19 min
LENTOKENTTÄ - 19 km / 19 min
Kysy lisätietoja tai sovitaan käynti kohteelle jo tänään!
Näkyvällä paikalla
Hausala Oy
Erkkilänkatu 11, 33100 Tampere
Näytä puhelinnumero
050 472 7077
Mika Savikko
Näytä puhelinnumero
050 472 7077
Mikko Ranta
Näytä puhelinnumero
050 360 6500
