Vuokrataan toimistotilat, tuotantotilat, varastotilat - Helsinki
Sahaajankatu 24, Herttoniemi, 00880 Helsinki #10860472
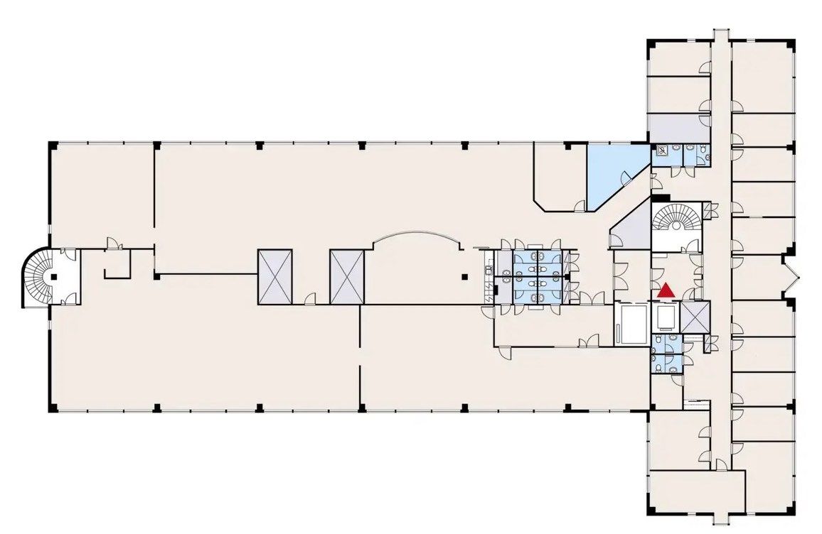
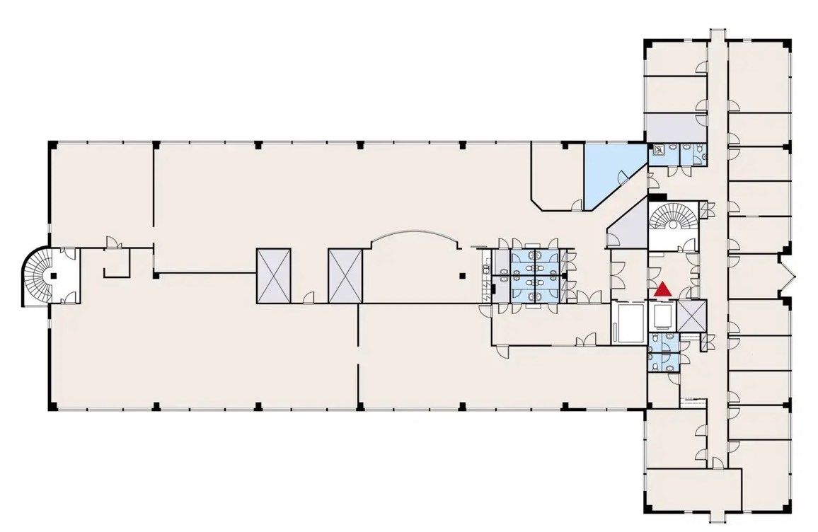
Vuokrattavana muuntojoustava, koko 4. kerroksen kattava 1044.5 m2 toimitilakokonaisuus Herttoniemen teollisuusalueella. Tilassa on eri kokoisia työhuoneita, avotilaa, keittiö sekä useita wc-tiloja. Kokonaisuus on mahdollista jakaa myös pienempiin osiin tarpeen mukaan. Osaa tilasta voi käyttää myös tuotanto- ja varastotilana.
Helsingin Sahaajankatu 24 sopii erinomaisesti teollisuusalan yrityksille, jotka tarvitsevat joustavasti yhdisteltäviä toimisto-, logistiikka- ja tuotantotiloja. Tilat voidaan räätälöidä vuokralaisen tarpeiden mukaan. Kiinteistöstä löytyy lisäksi tilava tavarahissi, joka helpottaa tavarankäsittelyä.
Kiinteistö sijaitsee hyvien kulkuyhteyksien varrella Herttoniemen teollisuusalueella.
Mahdollista vuokrata varastotilaa toimiston yhteyteen. Autopaikkoja on vuokrattavissa pihalla.
Lisätietoja numerosta 020 7290 710. Lisää kohteita osoitteessa premises.fi.
Kohteella ei ole lain edellyttämää energiatodistusta.Kerros: 4
CRE PREMISES
Puh. Näytä puhelinnumero 020 7290 710
Vantaankoskentie 14
01670 VANTAA
