Vuokrataan toimistotilat - Helsinki
Porkkalankatu 7, Ruoholahti, 00180 Helsinki #10860455
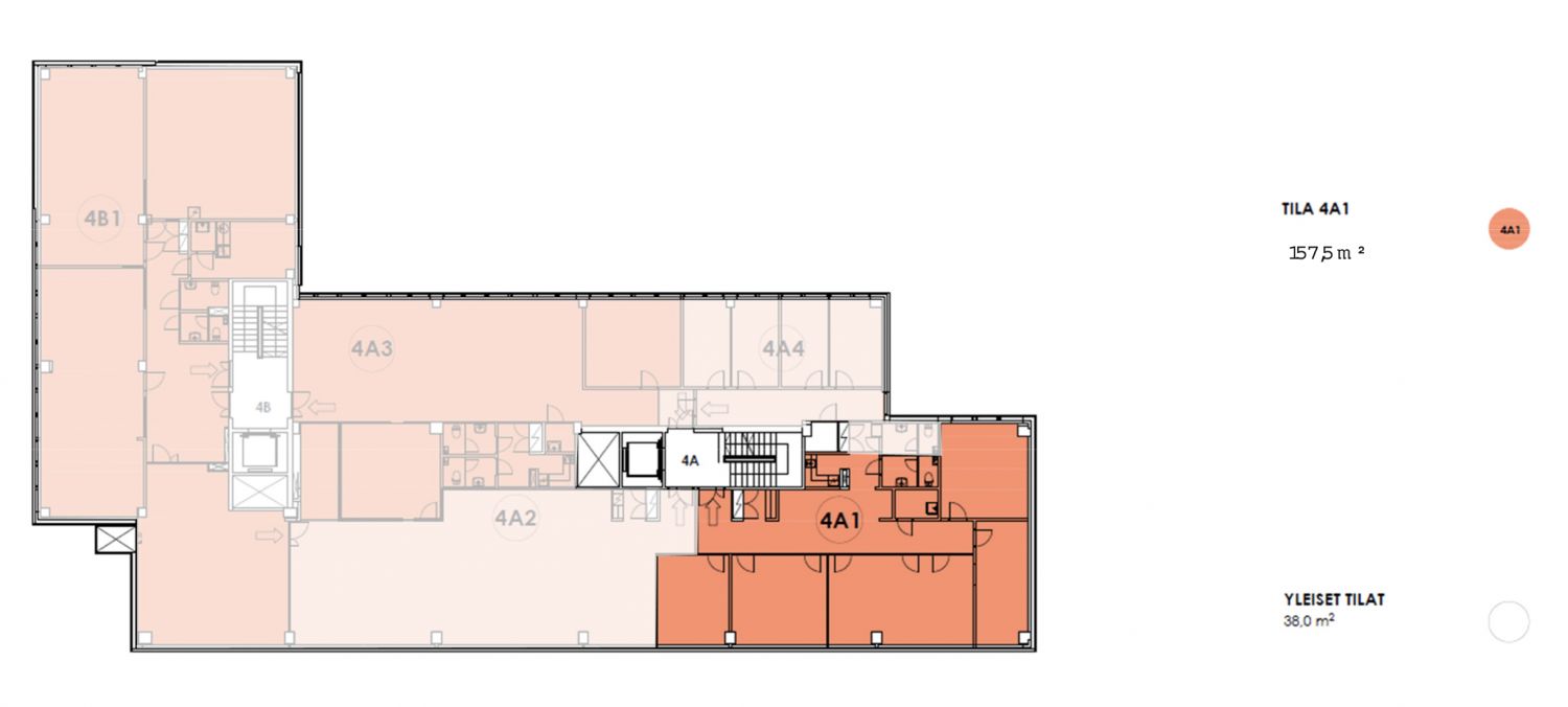
Ruoholahdessa vuokrattavana neljännen kerroksen toimistotila. Ohessa havainnollistavia kuvia kiinteistöstä.
Tämä seitsemänkerroksinen toimistorakennus sijaitsee keskeisellä paikalla Ruoholahdessa Porkkalankadun ja Salmisaarenkadun kulmassa. Kauppakeskus Ruoholahden palvelut ovat lyhyen kävelymatkan päässä. Viereisissä talossa on tarjolla lounasravintoloita runsas valikoima.
Autopaikkoja on vuokrattavissa kiinteistön pysäköintihallista, pihalta tai Kauppakeskus Ruoholahden parkkihallista, jonne ajetaan sisään Porkkalankadulta ja Länsisatamankadulta tai Länsiväylältä tunnelin kautta.
Lisätietoja numerosta 020 7290 710. Lisää kohteita osoitteessa www.premises.fi.
Energialuokka D.Kerros: 4
CRE PREMISES
Puh. Näytä puhelinnumero 020 7290 710
Vantaankoskentie 14
01670 VANTAA
