Vuokrataan toimistotilat, liiketilat - Tampere
Lindforsinkatu 2, Hervanta, 33720 Tampere #10860352
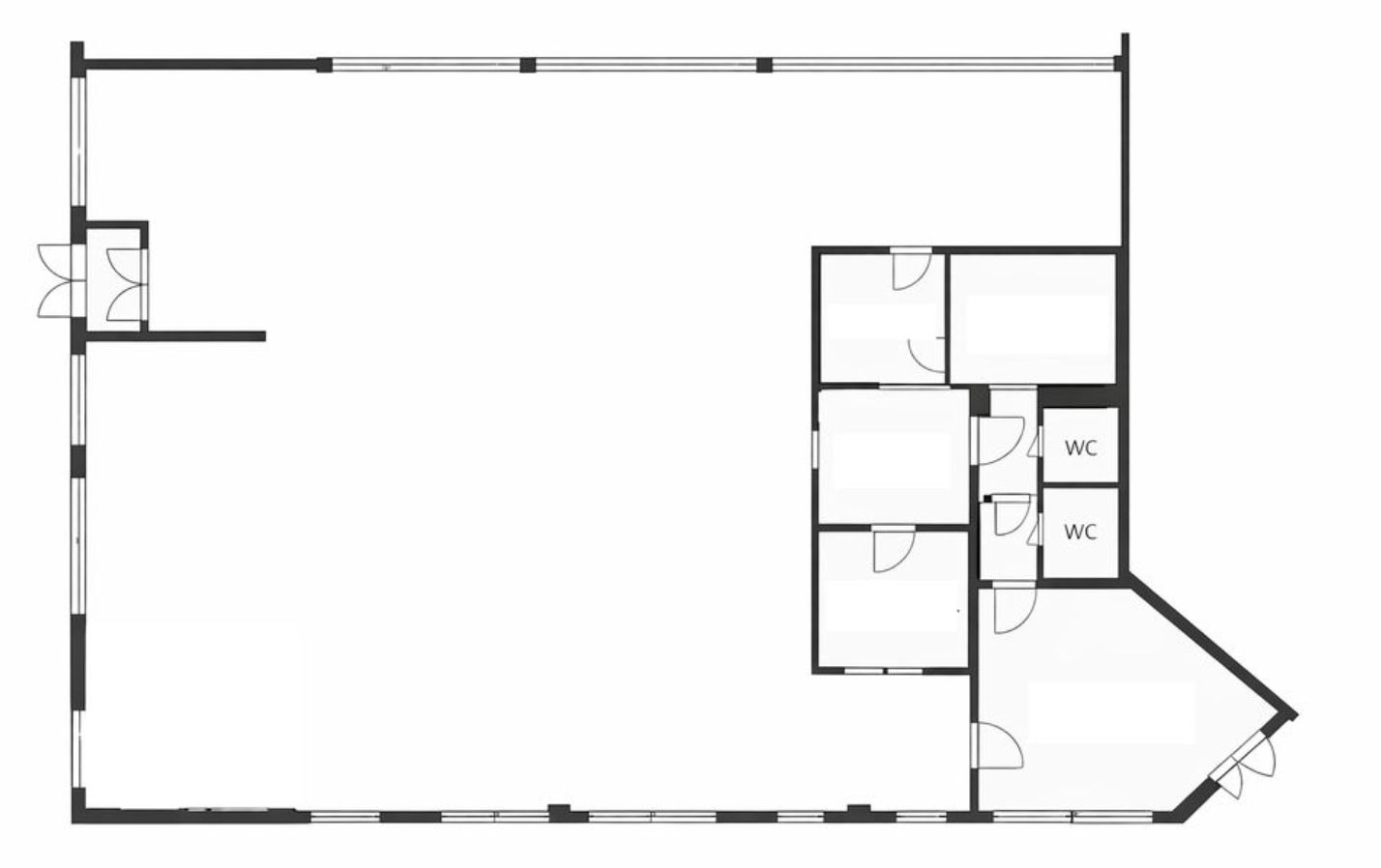
Katutason liiketila 482m2
Osoite
Lindforsinkatu 2, 33720 Tampere
Tilatyyppi
Toimistotilaa
482 m2
Liiketilaa
482 m2
Yhteensä
482 m2
Kiinteistö
Katutason 482m2 liiketila hyvällä sijainnilla Hervannassa.
Muokattavissa oleva monien mahdollisuuksien liiketila, hyvien yhteyksien parkkitilojen lähellä.
Tila vapautuu 31.5.2026.
Muokattavissa oleva monien mahdollisuuksien liiketila, hyvien yhteyksien parkkitilojen lähellä.
Tila vapautuu 31.5.2026.
Vapautuu
Kysy
Ota yhteyttä
Logistila Oy
Kalevan puistotie 22 LT 4, 33500 Tampere
Jukka Nukari
Näytä puhelinnumero
0440759789
Pyydä lisätietoa
