Vuokrataan toimistotilat - Helsinki
Porkkalankatu 7, Ruoholahti, 00180 Helsinki #10860345
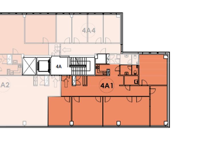
Vuokrataan 4. kerroksen toimistotila Ruoholahdesta. Tila koostuu 5 erikokoisesta työhuoneesta. Lisäksi minikeittiö ja wc-tila. Autopaikkoja vuokrattavissa Porkkalankadun toiselta puolelta Ruohoparkista. Tila vapautuu 1.9.2026.
Salmisaaren liiketalo sijaitsee keskeisellä paikalla Ruoholahdessa. Kohteeseen on hyvät liikenneyhteydet ja parkkihalliin ajo mahdollista suoraan Länsiväylältä. Metro-asema on kävelyetäisyydellä. Alueella on runsaasti lounasravintoloita ja Kauppakeskus Ruoholahden palvelut kadun toisella puolella.
Lisätietoja soita 020 730 4530 tai info@repoint.fi. Palvelumme on tilanhakijalle ilmainen.
Repoint Toimitilat Oy
Itälahdenkatu 22 B, 00210 Helsinki
Näytä puhelinnumero
020 730 4530
Lisätietoja soita Näytä puhelinnumero 020 730 4530 tai info@repoint.fi
https://repoint.fi/