Vuokrataan toimistotilat - Helsinki
Tammasaarenlaituri 3, Ruoholahti, 00180 Helsinki #10860344
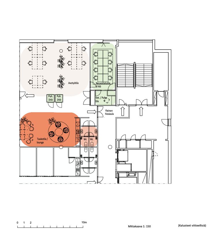
Vuokrataan 5. kerroksen toimistotila merelliseltä sijainnilta Ruoholahdesta. Avarassa Tilassa on avotoimistoa, kokoustila, vetäytymistila, sekä viihtyisät taukotilat ja keittiö.
Tästä talosta on upeat merinäköalat Lauttasaarensalmelle. Kiinteistössä vuokralaiset arvostavat näköalan lisäksi erityisesti huonekorkeutta, avaruutta ja valoisuutta. Kaapelitehdas sijaitsee kiinteistön vieressä. Kauppakeskus Ruoholahti palveluineen sekä ravintoloineen on viiden minuutin kävelyetäisyydellä, kuten myös Ruoholahden metroasema.
Lisätietoja soita 020 730 4530 tai info@repoint.fi. Palvelumme on tilanhakijalle ilmainen.
Repoint Toimitilat Oy
Itälahdenkatu 22 B, 00210 Helsinki
Näytä puhelinnumero
020 730 4530
Lisätietoja soita Näytä puhelinnumero 020 730 4530 tai info@repoint.fi
https://repoint.fi/