Vuokrataan toimistotilat - Helsinki
The Middle, Salomonkatu 17, Kamppi, 00100 Helsinki #10860330
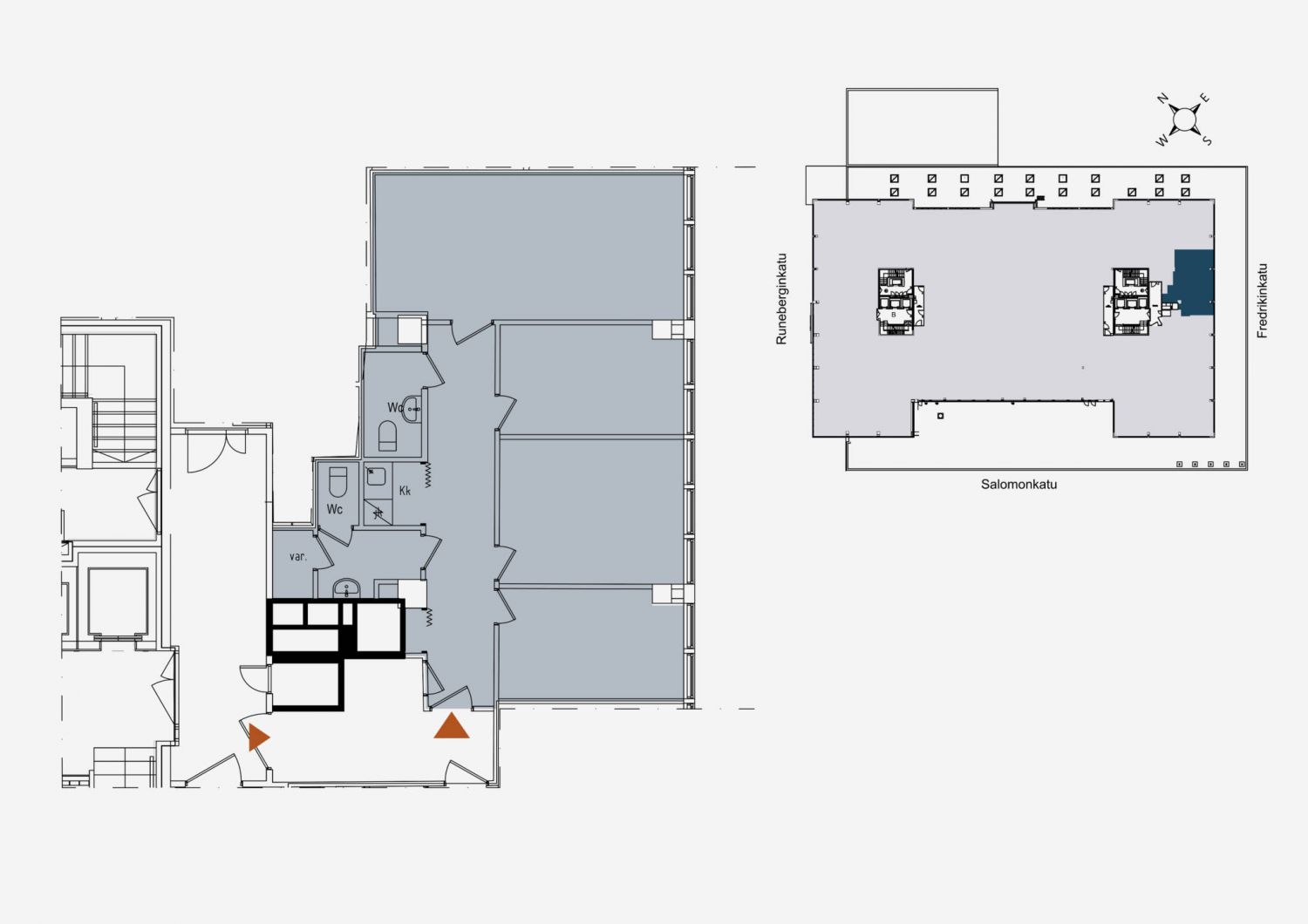
Siisti 80,9 m² toimisto Helsingin halutuimmalla paikalla Kampissa
Osoite
Salomonkatu 17, 00100 Helsinki
Tilatyyppi
Toimistotilaa
80,9 m2
Pohjapiirros
Kiinteistö
Näppärä pieni toimistotila jossa erillisiä huoneita.
The Middle on kolmesta kiinteistöstä koostuva maamerkki, jossa kaikki loksahtaa kohdalleen. Täällä työelämä ja moderni elämäntapa kohtaavat kokonaisen korttelin mitalla, keskellä kaupunkia. The Middlessä huippusijainti, yhteisöllisyys sekä työ ja vapaa-aika muodostavat uudenlaisen työelämäntavan – työ ei ole vain työtä, vaan osa hyvää elämää.
Korttelin kaikkia kiinteistöjä on peruskorjattu kattavasti 2010-luvulla vastaamaan tämän päivän työelämän tarpeita. Kiinteistöjen valoisat ja avarat toimitilat mahdollistavat erilaisten työympäristöjen rakentamisen.
The Middle -korttelin sijainti ei ole pelkkä piste kartalla, vaan mahdollistaja – luovuutta ruokkiva ympäristö sekä palveluiden ja yhteyksien verkosto kokoavat ihmiset jälleen yhteen.
The Middle on kolmesta kiinteistöstä koostuva maamerkki, jossa kaikki loksahtaa kohdalleen. Täällä työelämä ja moderni elämäntapa kohtaavat kokonaisen korttelin mitalla, keskellä kaupunkia. The Middlessä huippusijainti, yhteisöllisyys sekä työ ja vapaa-aika muodostavat uudenlaisen työelämäntavan – työ ei ole vain työtä, vaan osa hyvää elämää.
Korttelin kaikkia kiinteistöjä on peruskorjattu kattavasti 2010-luvulla vastaamaan tämän päivän työelämän tarpeita. Kiinteistöjen valoisat ja avarat toimitilat mahdollistavat erilaisten työympäristöjen rakentamisen.
The Middle -korttelin sijainti ei ole pelkkä piste kartalla, vaan mahdollistaja – luovuutta ruokkiva ympäristö sekä palveluiden ja yhteyksien verkosto kokoavat ihmiset jälleen yhteen.
Pysäköinti
Kiinteistössä oma parkkihalli.
Palvelut
Kampin keskuksen monipuoliset palvelut. Kiinteistössä on autohalli, pyöräparkki suihkuineen ja ravintolamaailma.
Kulkuyhteydet
Kampin metroasema ja linja-autoasema aivan vieressä.
Metroasema 100 m, Raitiovaunupysäkki alle 100 m, Bussipysäkki alle 100 m, Juna-asema 700 m, Lentoasema 16,6 km.
Metroasema 100 m, Raitiovaunupysäkki alle 100 m, Bussipysäkki alle 100 m, Juna-asema 700 m, Lentoasema 16,6 km.
Vapautuu
Heti
Rakennusvuosi
1958
Kerros
3 / 12
Energiatehokkuusluokka
Ei lain edellyttämää energiatodistusta
Näkyvällä paikalla
Hissi
Ota yhteyttä
ScanReal Oy LKV
Opus Business Park
Hitsaajankatu 24
00810 Helsinki
info@scanreal.fi
Puh:
Näytä puhelinnumero
020 730 8830
Sopivat toimitilat yhdellä otolla!
Kartoitamme toimitilatarpeesi ja etsimme yrityksellesi parhaiten sopivat vapaat toimitilat. Koska vuokranantajat maksavat palvelumme, on tämä yrityksellesi veloituksetonta.
OTA YHTEYTTÄ - SOVI NÄYTTÖ!
Kaikki kohteemme eivät ole netissä, kerro tilatarpeesi niin kartoitamme vaihtoehdot.
Palvelumme on tilanhakijalle ilmainen
Pyydä lisätietoa
